Вернуться к странице проекта
Комплекс находится по адресу: г. Москва, Волокаламское, срок сдачи Сдан. Это соединение удобной инфраструктуры городской застройки и зеленых зон отдыха.
Здания этажностью 5-22 эт. отличаются современным дизайном и функциональностью. Зеленая благоустроенная территория, приватный двор для жителей дома. В Клубный город на реке «Примавера» (Primavera) предлагаются удобные квартиры площадью от 40.6 м² до 345.3 м² с различной оснащенностью. Есть возможность покупки квартиры в ипотеку.
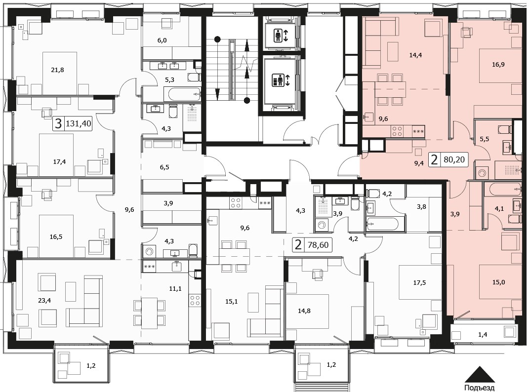
Двухкомнатная квартира 81.3 м², 2 этаж, Клубный город на реке «Примавера» (Primavera)
Vivaldi корп.1
Vivaldi корп.1
Готовность: IV кв. 2025
1 комн.
от 63.4 м2
от 43 270 500 ₽
2 комн.
от 79.9 м2
от 53 796 670 ₽
3 комн.
от 112.6 м2
от 74 023 240 ₽
13 квартир в продаже
Описание:
Комфортная двухкомнатная квартира квартира площадью 81.3 м² без отделки. Лот расположен на 2 этаже, корпуса Vivaldi корп.1 Клубный город на реке «Примавера» (Primavera).Комплекс находится по адресу: г. Москва, Волокаламское, срок сдачи Сдан. Это соединение удобной инфраструктуры городской застройки и зеленых зон отдыха.
Здания этажностью 5-22 эт. отличаются современным дизайном и функциональностью. Зеленая благоустроенная территория, приватный двор для жителей дома. В Клубный город на реке «Примавера» (Primavera) предлагаются удобные квартиры площадью от 40.6 м² до 345.3 м² с различной оснащенностью. Есть возможность покупки квартиры в ипотеку.
Стоимость квартиры без отделки
54 414 090 ₽
669 300 ₽/м²
Ежемесячный платеж
от 260 992 ₽/мес
При семейной ипотеке, ставке 6%, первом взносе 20% и сроком на 30 лет
Корпус
Vivaldi корп.1
Этаж
2
Площадь
81.3 м²
Секция
1
Комнат
2

Клубный город на реке «Примавера» (Primavera)
Москва, СЗАО, Волокаламское
м. Спартак
5 минут пешком до м. Спартак
Похожие предложения
Способы приобретения
Банк
Ставка
Первый взнос
Ежемесячный платеж
Настоящий сайт носит исключительно информационный характер, никакая информация, материалы, опубликованные на нем, ни при каких условиях не являются полностью или частично публичной офертой, определяемой положениями статьи 437 Гражданского кодекса РФ
Ипотека
100 % оплата
Программы рассрочки
Программы беспроцентных рассрочек Россини и Вивальди
• Рассрочка 20/80. Первоначальный взнос 20%, остаток 80% равными платежами.
• Рассрочка 35/35/30. Первоначальный взнос 35%, второй платеж 35% и последний – 30% в равном временном промежутке.
• Рассрочка 50/50. Первоначальный взнос 50%, остаток 50% единым платежом.
Программы беспроцентных рассрочек Россини
• Рассрочка 10/90. Первоначальный взнос 10%, остаток 90% через 6 месяцев.
• Рассрочка 30/70. Первоначальный взнос 30%, остаток 70% в 4 квартале 2023 г.
Все программы действуют с максимальным периодом:
• Россини – до 1 кв. 2024 года • Вивальди – до 1 кв. 2025 года
Остались вопросы?
Оставьте заявку и наш специалист свяжется с вами в ближайшее время для
подробной консультации
Оксана
Коммерческий директор








