Вернуться к странице проекта
Комплекс находится по адресу: г. Москва, 3-й Силикатный пр-д, срок сдачи 2027г.. Это соединение удобной инфраструктуры городской застройки и зеленых зон отдыха.
Здания этажностью 47-57 эт. отличаются современным дизайном и функциональностью. Зеленая благоустроенная территория, приватный двор для жителей дома. В ЖК «ДЖОЙС» (JOIS) предлагаются удобные квартиры площадью от 22.67 м² до 174.74 м² с различной оснащенностью. Есть возможность покупки квартиры в ипотеку.
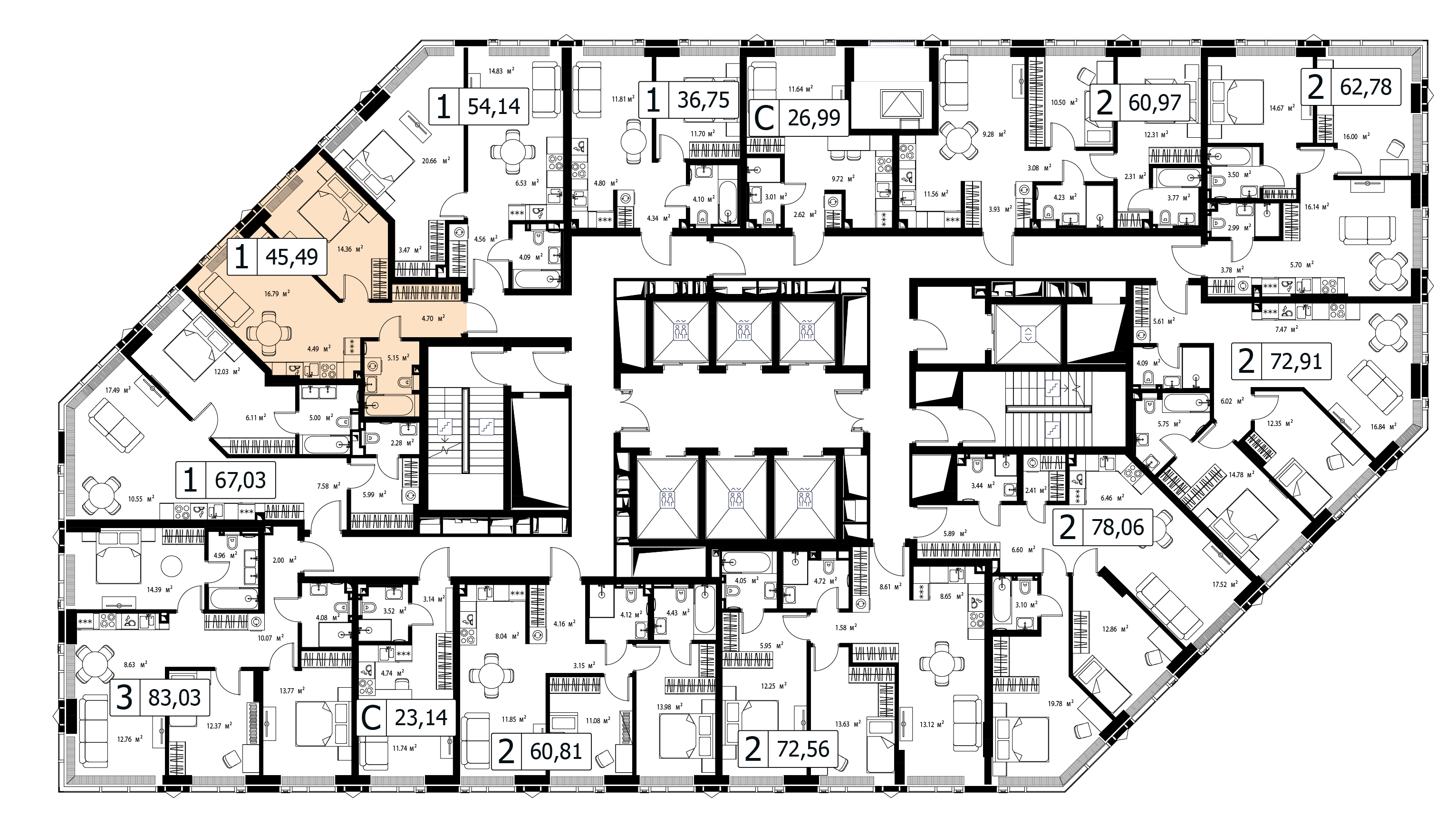
Однокомнатная квартира 45.7 м², 32 этаж, ЖК «ДЖОЙС» (JOIS)
Башня Anna
Описание:
Комфортная однокомнатная квартира квартира площадью 45.7 м² с отделкой . Лот расположен на 32 этаже, корпуса Башня Anna ЖК «ДЖОЙС» (JOIS).Комплекс находится по адресу: г. Москва, 3-й Силикатный пр-д, срок сдачи 2027г.. Это соединение удобной инфраструктуры городской застройки и зеленых зон отдыха.
Здания этажностью 47-57 эт. отличаются современным дизайном и функциональностью. Зеленая благоустроенная территория, приватный двор для жителей дома. В ЖК «ДЖОЙС» (JOIS) предлагаются удобные квартиры площадью от 22.67 м² до 174.74 м² с различной оснащенностью. Есть возможность покупки квартиры в ипотеку.
Стоимость квартиры с отделкой
29 609 030 ₽
647 900 ₽/м²
Ежемесячный платеж
от 142 017 ₽/мес
При семейной ипотеке, ставке 6%, первом взносе 20% и сроком на 30 лет
Корпус
Башня Anna
Этаж
32
Площадь
45.7 м²
Секция
1
Комнат
1

ЖК «ДЖОЙС» (JOIS)
Москва, СЗАО, 3-й Силикатный пр-д
м. Бескудниково
м. Народное Ополчение
5 минут до МЦК «Хорошево»
Похожие предложения
Способы приобретения
Банк
Ставка
Первый взнос
Ежемесячный платеж
Настоящий сайт носит исключительно информационный характер, никакая информация, материалы, опубликованные на нем, ни при каких условиях не являются полностью или частично публичной офертой, определяемой положениями статьи 437 Гражданского кодекса РФ
Остались вопросы?
Оставьте заявку и наш специалист свяжется с вами в ближайшее время для
подробной консультации
Оксана
Коммерческий директор























