Вернуться к странице проекта
Комплекс находится по адресу: г. Москва, Волокаламское, срок сдачи Сдан. Это соединение удобной инфраструктуры городской застройки и зеленых зон отдыха.
Здания этажностью 5-22 эт. отличаются современным дизайном и функциональностью. Зеленая благоустроенная территория, приватный двор для жителей дома. В Клубный город на реке «Примавера» (Primavera) предлагаются удобные квартиры площадью от 40.6 м² до 345.3 м² с различной оснащенностью. Есть возможность покупки квартиры в ипотеку.
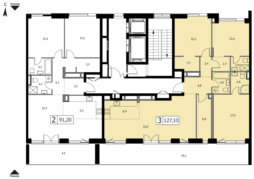
Трехкомнатная квартира 127.8 м², 10 этаж, Клубный город на реке «Примавера» (Primavera)
Vivaldi корп.4
Vivaldi корп.4
Готовность: IV кв. 2025
1 комн.
от 99.9 м2
от 78 221 700 ₽
2 комн.
от 75 м2
от 49 072 500 ₽
3 комн.
от 99.3 м2
от 74 842 410 ₽
4 комн.
от 178.9 м2
от 179 061 010 ₽
24 квартиры в продаже
Описание:
Комфортная трехкомнатная квартира квартира площадью 127.8 м² без отделки. Лот расположен на 10 этаже, корпуса Vivaldi корп.4 Клубный город на реке «Примавера» (Primavera).Комплекс находится по адресу: г. Москва, Волокаламское, срок сдачи Сдан. Это соединение удобной инфраструктуры городской застройки и зеленых зон отдыха.
Здания этажностью 5-22 эт. отличаются современным дизайном и функциональностью. Зеленая благоустроенная территория, приватный двор для жителей дома. В Клубный город на реке «Примавера» (Primavera) предлагаются удобные квартиры площадью от 40.6 м² до 345.3 м² с различной оснащенностью. Есть возможность покупки квартиры в ипотеку.
Стоимость квартиры без отделки
124 042 680 ₽
970 600 ₽/м²
Ежемесячный платеж
от 594 959 ₽/мес
При семейной ипотеке, ставке 6%, первом взносе 20% и сроком на 30 лет
Корпус
Vivaldi корп.4
Этаж
10
Площадь
127.8 м²
Секция
2
Комнат
3

Клубный город на реке «Примавера» (Primavera)
Москва, СЗАО, Волокаламское
м. Спартак
5 минут пешком до м. Спартак
Похожие предложения
Способы приобретения
Банк
Ставка
Первый взнос
Ежемесячный платеж
Настоящий сайт носит исключительно информационный характер, никакая информация, материалы, опубликованные на нем, ни при каких условиях не являются полностью или частично публичной офертой, определяемой положениями статьи 437 Гражданского кодекса РФ
Ипотека
100 % оплата
Программы рассрочки
Программы беспроцентных рассрочек Россини и Вивальди
• Рассрочка 20/80. Первоначальный взнос 20%, остаток 80% равными платежами.
• Рассрочка 35/35/30. Первоначальный взнос 35%, второй платеж 35% и последний – 30% в равном временном промежутке.
• Рассрочка 50/50. Первоначальный взнос 50%, остаток 50% единым платежом.
Программы беспроцентных рассрочек Россини
• Рассрочка 10/90. Первоначальный взнос 10%, остаток 90% через 6 месяцев.
• Рассрочка 30/70. Первоначальный взнос 30%, остаток 70% в 4 квартале 2023 г.
Все программы действуют с максимальным периодом:
• Россини – до 1 кв. 2024 года • Вивальди – до 1 кв. 2025 года
Остались вопросы?
Оставьте заявку и наш специалист свяжется с вами в ближайшее время для
подробной консультации
Оксана
Коммерческий директор








