Вернуться к странице проекта
Комплекс находится по адресу: г. Москва, Часовая, срок сдачи 2028г.. Это соединение удобной инфраструктуры городской застройки и зеленых зон отдыха.
Здания этажностью эт. отличаются современным дизайном и функциональностью. Зеленая благоустроенная территория, приватный двор для жителей дома. В ЖК «ДД:OO:MM. Дом на Часовой» (DD:OO:MM) предлагаются удобные квартиры площадью от 28.5 м² до 98.8 м² с различной оснащенностью. Есть возможность покупки квартиры в ипотеку.
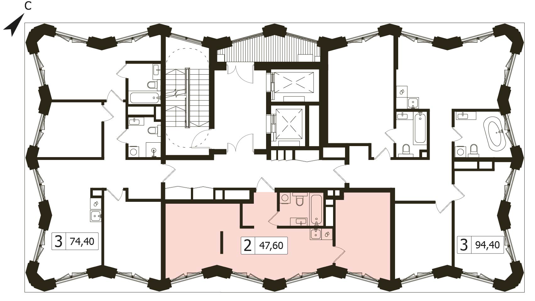
Однокомнатная квартира 47.6 м², 10 этаж, ЖК «ДД:OO:MM. Дом на Часовой» (DD:OO:MM)
Корпус 1
Описание:
Комфортная однокомнатная квартира квартира площадью 47.6 м² без отделки. Лот расположен на 10 этаже, корпуса 1 ЖК «ДД:OO:MM. Дом на Часовой» (DD:OO:MM).Комплекс находится по адресу: г. Москва, Часовая, срок сдачи 2028г.. Это соединение удобной инфраструктуры городской застройки и зеленых зон отдыха.
Здания этажностью эт. отличаются современным дизайном и функциональностью. Зеленая благоустроенная территория, приватный двор для жителей дома. В ЖК «ДД:OO:MM. Дом на Часовой» (DD:OO:MM) предлагаются удобные квартиры площадью от 28.5 м² до 98.8 м² с различной оснащенностью. Есть возможность покупки квартиры в ипотеку.
Стоимость квартиры без отделки
32 419 767 ₽
681 088 ₽/м²
Ежемесячный платеж
от 155 498 ₽/мес
При семейной ипотеке, ставке 6%, первом взносе 20% и сроком на 30 лет
Корпус
Корпус 1
Этаж
10
Площадь
47.6 м²
Секция
9
Комнат
1

ЖК «ДД:OO:MM. Дом на Часовой» (DD:OO:MM)
Москва, САО, Часовая
м. Аэропорт
12 мин пешком до м.Аэропорт
Похожие предложения
Способы приобретения
Банк
Ставка
Первый взнос
Ежемесячный платеж
Настоящий сайт носит исключительно информационный характер, никакая информация, материалы, опубликованные на нем, ни при каких условиях не являются полностью или частично публичной офертой, определяемой положениями статьи 437 Гражданского кодекса РФ
Остались вопросы?
Оставьте заявку и наш специалист свяжется с вами в ближайшее время для
подробной консультации
Оксана
Коммерческий директор






















