Вернуться к странице проекта
Комплекс находится по адресу: г. Москва, Ильменский проезд, срок сдачи 2026г.. Это соединение удобной инфраструктуры городской застройки и зеленых зон отдыха.
Здания этажностью 8-45 эт. отличаются современным дизайном и функциональностью. Зеленая благоустроенная территория, приватный двор для жителей дома. В ЖК «Селигер Сити» предлагаются удобные квартиры площадью от 25.13 м² до 109.9 м² с различной оснащенностью. Есть возможность покупки квартиры в ипотеку.
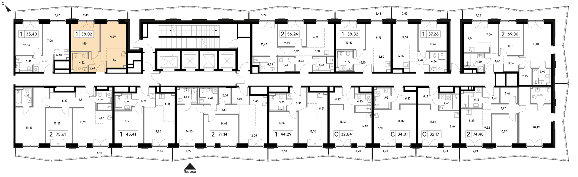
Однокомнатная квартира 38.38 м², 31 этаж, ЖК «Селигер Сити»
Башни Лисицкого
Башни Лисицкого
Готовность: III кв. 2026
Студии
от 35.25 м2
от 25 048 650 ₽
1 комн.
от 30.89 м2
от 22 680 307 ₽
2 комн.
от 39.73 м2
от 28 569 843 ₽
3 комн.
от 80.71 м2
от 46 271 043 ₽
68 квартир в продаже
Описание:
Комфортная однокомнатная квартира квартира площадью 38.38 м² без отделки. Лот расположен на 31 этаже, корпуса H ЖК «Селигер Сити».Комплекс находится по адресу: г. Москва, Ильменский проезд, срок сдачи 2026г.. Это соединение удобной инфраструктуры городской застройки и зеленых зон отдыха.
Здания этажностью 8-45 эт. отличаются современным дизайном и функциональностью. Зеленая благоустроенная территория, приватный двор для жителей дома. В ЖК «Селигер Сити» предлагаются удобные квартиры площадью от 25.13 м² до 109.9 м² с различной оснащенностью. Есть возможность покупки квартиры в ипотеку.
Стоимость квартиры без отделки
27 080 928 ₽
705 600 ₽/м²
Ежемесячный платеж
от 129 891 ₽/мес
При семейной ипотеке, ставке 6%, первом взносе 20% и сроком на 30 лет
Корпус
Корпус H
Этаж
31
Площадь
38.38 м²
Секция
2
Комнат
1

ЖК «Селигер Сити»
Москва, САО, Ильменский проезд
м. Селигерская
3 мин. пешком
Похожие предложения
Способы приобретения
Банк
Ставка
Первый взнос
Ежемесячный платеж
Настоящий сайт носит исключительно информационный характер, никакая информация, материалы, опубликованные на нем, ни при каких условиях не являются полностью или частично публичной офертой, определяемой положениями статьи 437 Гражданского кодекса РФ
Ипотека
100 % оплата
Рассрочка
· первый взнос 60%, при этом скидка 5%. Остаток оплачивается ежемесячно или ежеквартально до 4 квартала 2024 годаДанная рассрочка актуальная только для 4-ой очереди проекта.
Система Trade-In
· удобная покупка по новой системе Trade-In
*Все подробности уточняйте у менеджеров продаж по телефону: +7 495 126-43-39.
Остались вопросы?
Оставьте заявку и наш специалист свяжется с вами в ближайшее время для
подробной консультации
Оксана
Коммерческий директор























