Вернуться к странице проекта
Комплекс находится по адресу: г. Москва, Ленинградское шоссе, срок сдачи 2028г.. Это соединение удобной инфраструктуры городской застройки и зеленых зон отдыха.
Здания этажностью эт. отличаются современным дизайном и функциональностью. Зеленая благоустроенная территория, приватный двор для жителей дома. В жилом комплексе «Северный порт» предлагаются удобные квартиры площадью от 29.4 м² до 134.9 м² с различной оснащенностью. Есть возможность покупки квартиры в ипотеку.
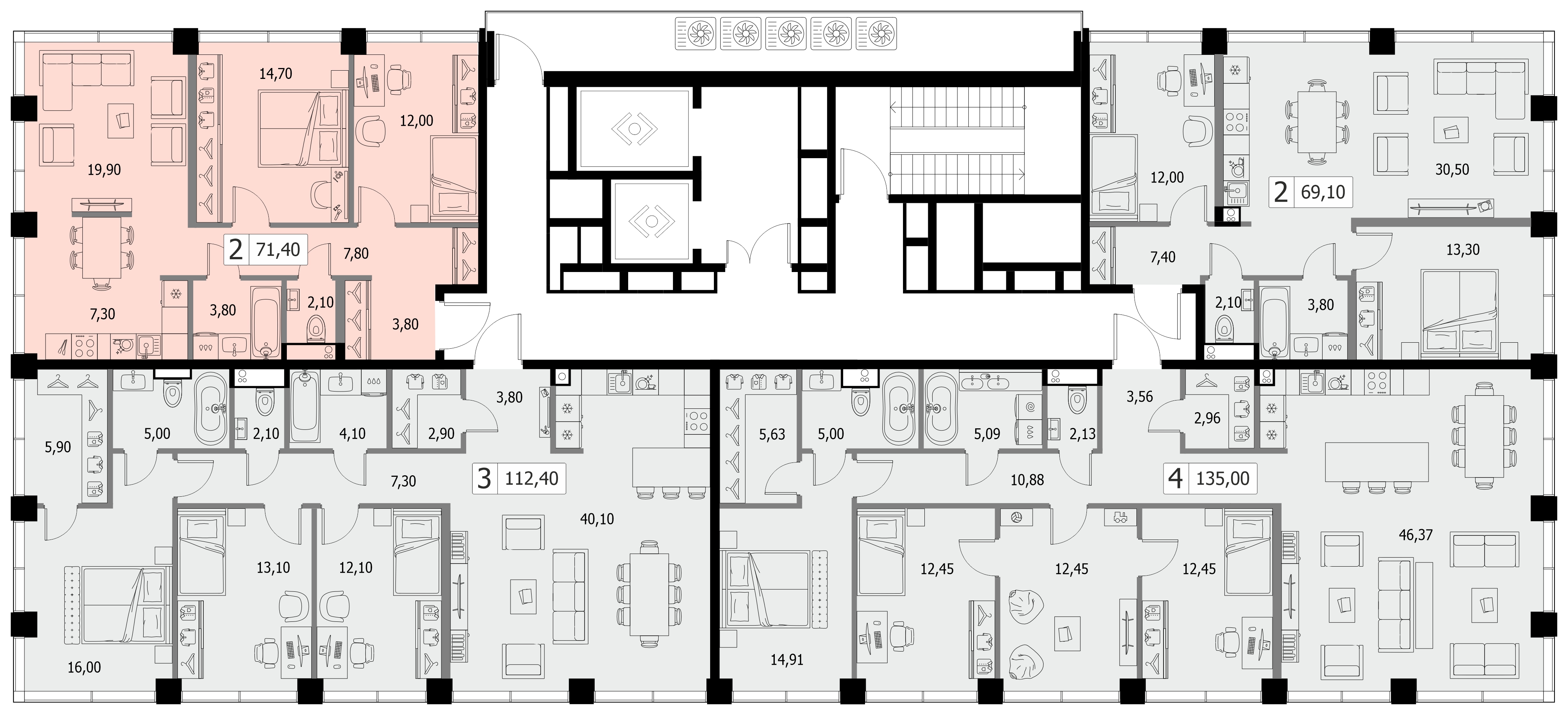
Трехкомнатная квартира №1170, 112.4 м², 18 этаж, Жилой комплекс «Северный порт»



Корпус 7.2
Корпус 7.2
Готовность: I кв. 2028
2 комн.
от 66.9 м2
от 35 735 770 ₽
3 комн.
от 44.4 м2
от 24 593 160 ₽
4 комн.
от 134.8 м2
от 102 111 000 ₽
16 квартир в продаже
Описание:
Комфортная трехкомнатная квартира квартира площадью 112.4 м² без отделки. Лот расположен на 18 этаже, корпуса 7.2 жилого комплекса «Северный порт».Комплекс находится по адресу: г. Москва, Ленинградское шоссе, срок сдачи 2028г.. Это соединение удобной инфраструктуры городской застройки и зеленых зон отдыха.
Здания этажностью эт. отличаются современным дизайном и функциональностью. Зеленая благоустроенная территория, приватный двор для жителей дома. В жилом комплексе «Северный порт» предлагаются удобные квартиры площадью от 29.4 м² до 134.9 м² с различной оснащенностью. Есть возможность покупки квартиры в ипотеку.
Стоимость квартиры без отделки
90 819 200 ₽
808 000 ₽/м²
Ежемесячный платеж
от 435 606 ₽/мес
При семейной ипотеке, ставке 6%, первом взносе 20% и сроком на 30 лет
Корпус
Корпус 7.2
Условный номер
№ 1170
Этаж
18
Площадь
112.4 м²
Секция
1
Комнат
3

Жилой комплекс «Северный порт»
Москва, САО, Ленинградское шоссе
м. Речной вокзал
7 минут до м. Речной вокзал
Способы приобретения
Банк
Ставка
Первый взнос
Ежемесячный платеж
Настоящий сайт носит исключительно информационный характер, никакая информация, материалы, опубликованные на нем, ни при каких условиях не являются полностью или частично публичной офертой, определяемой положениями статьи 437 Гражданского кодекса РФ
ИПОТЕКА
100 % ОПЛАТА
РЕГИСТРАЦИЯ
РАССРОЧКА
По индивидуальным условиям
Все подробности уточняйте у менеджеров продаж по телефону


Остались вопросы?
Оставьте заявку и наш специалист свяжется с вами в ближайшее время для
подробной консультации

Оксана
Коммерческий директор