Вернуться к странице проекта
Комплекс находится по адресу: г. Москва, Пресненская наб., вл. 14/15, срок сдачи 2027г.. Это соединение удобной инфраструктуры городской застройки и зеленых зон отдыха.
Здания этажностью 85 эт. отличаются современным дизайном и функциональностью. Зеленая благоустроенная территория, приватный двор для жителей дома. В МФК «Дом Дау» предлагаются удобные квартиры площадью от 50.71 м² до 226.06 м² с различной оснащенностью. Есть возможность покупки квартиры в ипотеку.
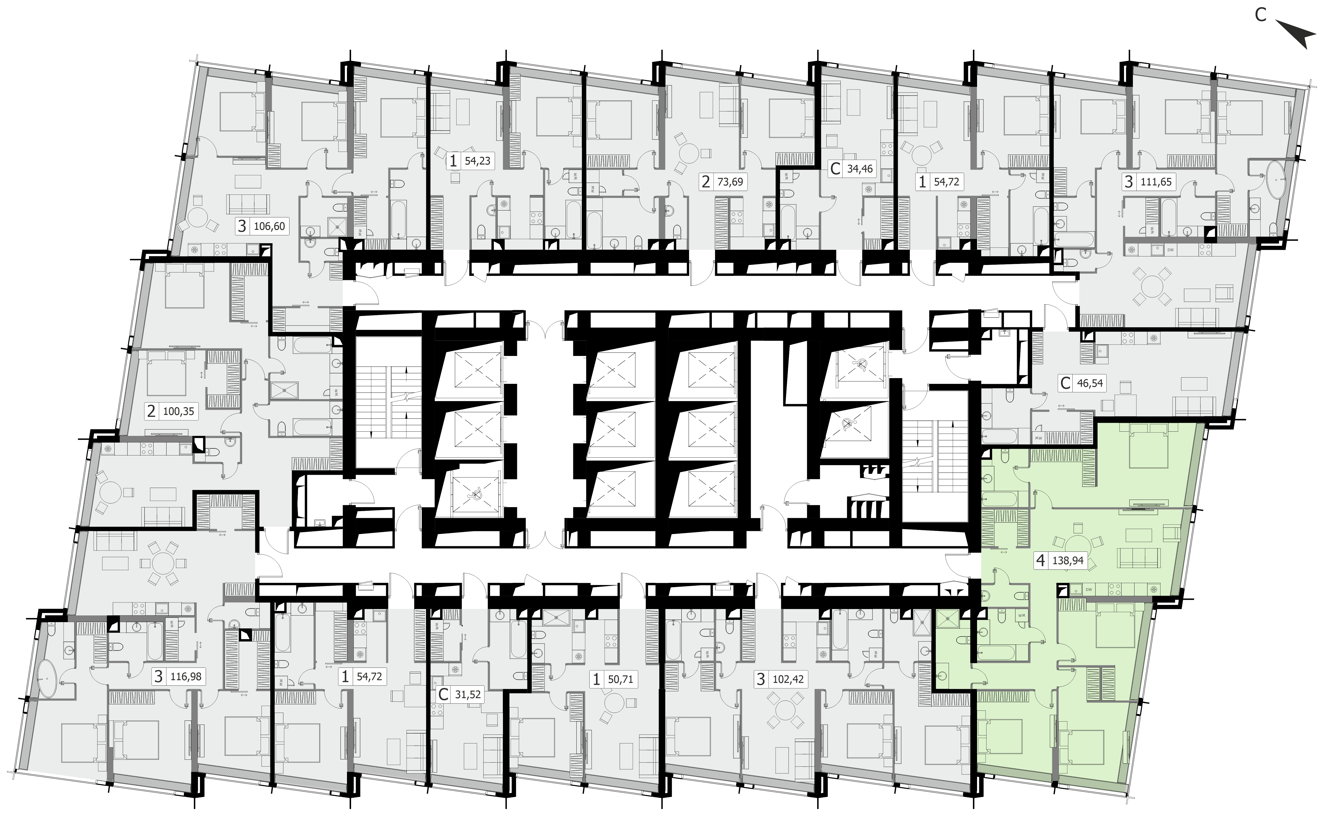
Четырехкомнатная квартира №148, 138.94 м², 15 этаж, МФК «Дом Дау»
Описание:
Комфортная четырехкомнатная квартира квартира площадью 138.94 м² без отделки. Лот расположен на 15 этаже, корпуса 1 МФК «Дом Дау».Комплекс находится по адресу: г. Москва, Пресненская наб., вл. 14/15, срок сдачи 2027г.. Это соединение удобной инфраструктуры городской застройки и зеленых зон отдыха.
Здания этажностью 85 эт. отличаются современным дизайном и функциональностью. Зеленая благоустроенная территория, приватный двор для жителей дома. В МФК «Дом Дау» предлагаются удобные квартиры площадью от 50.71 м² до 226.06 м² с различной оснащенностью. Есть возможность покупки квартиры в ипотеку.
Стоимость квартиры без отделки
114 146 152 ₽
821 550 ₽/м²
Ежемесячный платеж
от 547 491 ₽/мес
При семейной ипотеке, ставке 6%, первом взносе 20% и сроком на 30 лет
Корпус
Корпус 1
Условный номер
№ 148
Этаж
15
Площадь
138.94 м²
Секция
1
Комнат
4

МФК «Дом Дау»
Москва, ЦАО, Пресненская наб., вл. 14/15
м. Деловой центр
м. Выставочная
5 минут пешком до м. Выставочная
Похожие предложения
Способы приобретения
Банк
Ставка
Первый взнос
Ежемесячный платеж
Настоящий сайт носит исключительно информационный характер, никакая информация, материалы, опубликованные на нем, ни при каких условиях не являются полностью или частично публичной офертой, определяемой положениями статьи 437 Гражданского кодекса РФ
ИПОТЕКА
100 % ОПЛАТА
РЕГИСТРАЦИЯ
РАССРОЧКА
По индивидуальным условиям
Все подробности уточняйте у менеджеров продаж по телефону
Остались вопросы?
Оставьте заявку и наш специалист свяжется с вами в ближайшее время для
подробной консультации
Оксана
Коммерческий директор





























