Вернуться к странице проекта
Комплекс находится по адресу: г. Москва, Вишневая, срок сдачи 2027г.. Это соединение удобной инфраструктуры городской застройки и зеленых зон отдыха.
Здания этажностью 10-53 эт. отличаются современным дизайном и функциональностью. Зеленая благоустроенная территория, приватный двор для жителей дома. В жилом комплексе «CITYZEN» (СитиЗен) предлагаются удобные квартиры площадью от 21.8 м² до 109.5 м² с различной оснащенностью. Есть возможность покупки квартиры в ипотеку.
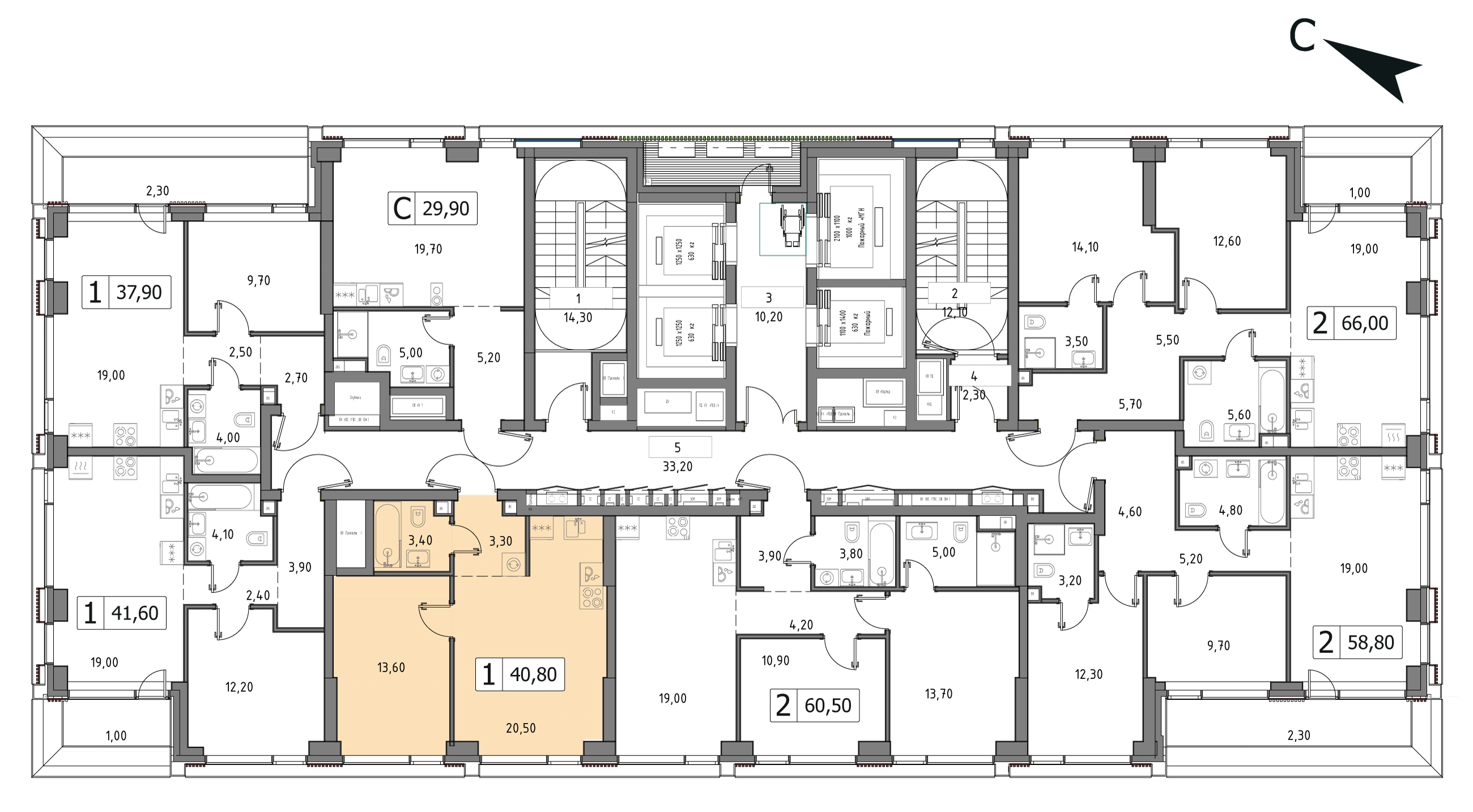
Однокомнатная квартира 40.8 м², 7 этаж, Жилой комплекс «CITYZEN» (СитиЗен)
Корпус 2
Корпус 2
Готовность: III кв. 2027
Студии
от 23.8 м2
от 14 722 680 ₽
1 комн.
от 34.5 м2
от 18 322 950 ₽
2 комн.
от 56.8 м2
от 26 673 280 ₽
78 квартир в продаже
Описание:
Комфортная однокомнатная квартира квартира площадью 40.8 м² без отделки. Лот расположен на 7 этаже, корпуса 2 жилого комплекса «CITYZEN» (СитиЗен).Комплекс находится по адресу: г. Москва, Вишневая, срок сдачи 2027г.. Это соединение удобной инфраструктуры городской застройки и зеленых зон отдыха.
Здания этажностью 10-53 эт. отличаются современным дизайном и функциональностью. Зеленая благоустроенная территория, приватный двор для жителей дома. В жилом комплексе «CITYZEN» (СитиЗен) предлагаются удобные квартиры площадью от 21.8 м² до 109.5 м² с различной оснащенностью. Есть возможность покупки квартиры в ипотеку.
Стоимость квартиры без отделки
20 901 840 ₽
512 300 ₽/м²
Ежемесячный платеж
от 100 254 ₽/мес
При семейной ипотеке, ставке 6%, первом взносе 20% и сроком на 30 лет
Корпус
Корпус 2
Этаж
7
Площадь
40.8 м²
Секция
1
Комнат
1

Жилой комплекс «CITYZEN» (СитиЗен)
Москва, СЗАО, Вишневая
м. Тушинская
3 минуты пешком до метро Тушинская
Похожие предложения
Способы приобретения
Банк
Ставка
Первый взнос
Ежемесячный платеж
Настоящий сайт носит исключительно информационный характер, никакая информация, материалы, опубликованные на нем, ни при каких условиях не являются полностью или частично публичной офертой, определяемой положениями статьи 437 Гражданского кодекса РФ
ИПОТЕКА
100 % ОПЛАТА
РЕГИСТРАЦИЯ
РАССРОЧКА
По индивидуальным условиям
Все подробности уточняйте у менеджеров продаж по телефону
Остались вопросы?
Оставьте заявку и наш специалист свяжется с вами в ближайшее время для
подробной консультации
Оксана
Коммерческий директор






















