- Главная
- Новостройки
- Клубный дом «ДЭ ОРО МИЛЛЕ» (D'ORO MILLE) Корпус 1
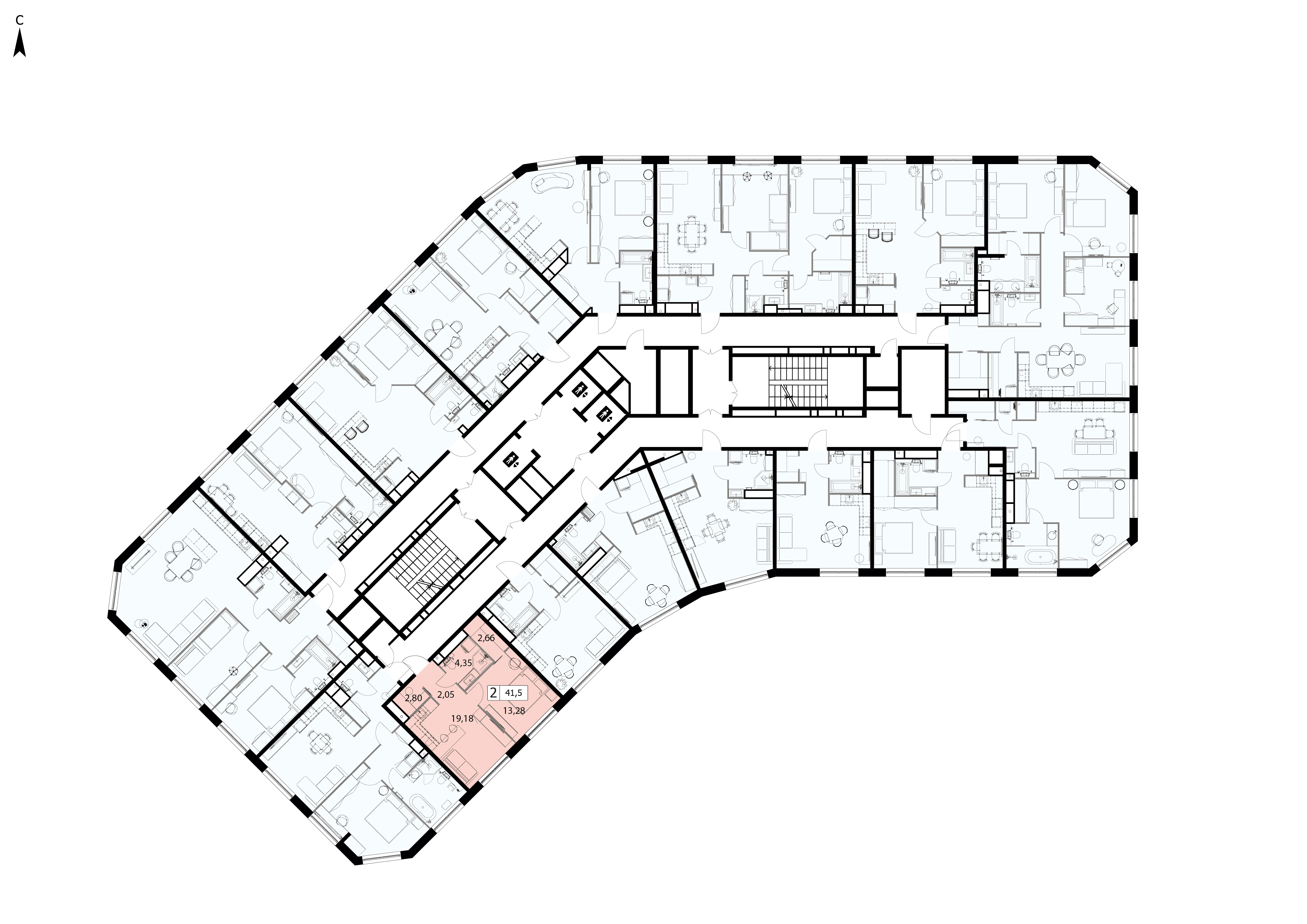
- Двухкомнатный апартамент 41.49м², 2 этаж
Двухкомнатный апартамент 41.49 м², 2 этаж, Клубный дом «ДЭ ОРО МИЛЛЕ» (D'ORO MILLE)
Описание:
Комфортная двухкомнатный апартамент квартира площадью 41.49 м² без отделки. Лот расположен на 2 этаже, корпуса 1 Клубный дом «ДЭ ОРО МИЛЛЕ» (D'ORO MILLE).Комплекс находится по адресу: г. Москва, 1-й Можайский, срок сдачи 2026г.. Это соединение удобной инфраструктуры городской застройки и зеленых зон отдыха.
Здания этажностью 14 эт. отличаются современным дизайном и функциональностью. Зеленая благоустроенная территория, приватный двор для жителей дома. В Клубный дом «ДЭ ОРО МИЛЛЕ» (D'ORO MILLE) предлагаются удобные квартиры площадью от 30.45 м² до 215.21 м² с различной оснащенностью. Есть возможность покупки квартиры в ипотеку.
Стоимость апартамента без отделки
48 875 220 ₽
1 178 000 ₽/м²
Оставьте заявку и наш специалист свяжется с Вами в ближайшее время
Оставьте заявку и наш специалист свяжется с Вами в ближайшее время
Корпус
Корпус 1
Этаж
2
Площадь
41.49 м²
Секция
1
Комнат
2

Похожие предложения
Способы приобретения
Банк
Ставка
Первый взнос
Ежемесячный платеж
-
Банк

Уральский банк реконструкции и развития
Ставкаот 4,6 %Первый взнос от 15 %Ежемесячный платеж уточняйте по телефону субсидированная программа, может измениться стоимость объектаОтправить заявкуЗаявка на ипотеку
Оставьте заявку и наш специалист свяжется с Вами в ближайшее время
-
Банк

ВТБ
лицензия №1623 от 29.10.2014 г.
Ставкаот 4 %Первый взнос от 10 %Ежемесячный платеж уточняйте по телефону субсидированная программа, может измениться стоимость объектаОтправить заявкуЗаявка на ипотеку
Оставьте заявку и наш специалист свяжется с Вами в ближайшее время
-
Банк

Совкомбанк
лицензия №963 от 05.12.2014 г.
Ставкаот 4,75 %Первый взнос от 15 %Ежемесячный платеж уточняйте по телефону субсидированная программа, может измениться стоимость объектаОтправить заявкуЗаявка на ипотеку
Оставьте заявку и наш специалист свяжется с Вами в ближайшее время
-
Банк

ФБ Открытие
лицензия №2209 от 24.11.2014 г.
Ставкаот 4,5 %Первый взнос от 10 %Ежемесячный платеж уточняйте по телефону субсидированная программа, может измениться стоимость объектаОтправить заявкуЗаявка на ипотеку
Оставьте заявку и наш специалист свяжется с Вами в ближайшее время
-
Банк

Банк БЖФ
лицензия №3138 от 01.11.2019 г.
Ставкаот 5,5 %Первый взнос от 15 %Ежемесячный платеж уточняйте по телефону субсидированная программа, может измениться стоимость объектаОтправить заявкуЗаявка на ипотеку
Оставьте заявку и наш специалист свяжется с Вами в ближайшее время
-
Банк

Всероссийский банк развития регионов
лицензия №3287 от 27.03.2015 г.
Ставкаот 5,7 %Первый взнос от 15 %Ежемесячный платеж уточняйте по телефону субсидированная программа, может измениться стоимость объектаОтправить заявкуЗаявка на ипотеку
Оставьте заявку и наш специалист свяжется с Вами в ближайшее время
-
Банк

Райффайзенбанк
лицензия №3292 от 17.02.2015 г.
Ставкаот 12,39 %Первый взнос от 15 %Ежемесячный платеж от 439 838 ₽/мес При семейной ипотеке, ставке 6%, первом взносе 20% и сроком на 30 летОтправить заявкуЗаявка на ипотеку
Оставьте заявку и наш специалист свяжется с Вами в ближайшее время
-
Банк

Банк Уралсиб
лицензия №2275 от 10.09.2015 г.
Ставкаот 5,59 %Первый взнос от 15 %Ежемесячный платеж уточняйте по телефону субсидированная программа, может измениться стоимость объектаОтправить заявкуЗаявка на ипотеку
Оставьте заявку и наш специалист свяжется с Вами в ближайшее время
-
Банк

Сургутнефтегазбанк
лицензия №588 от 5.09.2016 г.
Ставкаот 5,3 %Первый взнос от 15 %Ежемесячный платеж уточняйте по телефону субсидированная программа, может измениться стоимость объектаОтправить заявкуЗаявка на ипотеку
Оставьте заявку и наш специалист свяжется с Вами в ближайшее время
-
Банк

Российский Национальный Коммерческий Банк
лицензия №1354 от 20.05.2015 г.
Ставкаот 5 %Первый взнос от 15 %Ежемесячный платеж уточняйте по телефону субсидированная программа, может измениться стоимость объектаОтправить заявкуЗаявка на ипотеку
Оставьте заявку и наш специалист свяжется с Вами в ближайшее время
-
Банк

Банк Санкт-Петербург
лицензия №436 от 31.12.2014 г.
Ставкаот 4,65 %Первый взнос от 15 %Ежемесячный платеж уточняйте по телефону субсидированная программа, может измениться стоимость объектаОтправить заявкуЗаявка на ипотеку
Оставьте заявку и наш специалист свяжется с Вами в ближайшее время
-
Банк

Банк Зенит
лицензия №3255 от 16.12.2014
Ставкаот 5,6 %Первый взнос от 15 %Ежемесячный платеж уточняйте по телефону субсидированная программа, может измениться стоимость объектаОтправить заявкуЗаявка на ипотеку
Оставьте заявку и наш специалист свяжется с Вами в ближайшее время
-
Банк

Транскапиталбанк
лицензия №2210 от 02.06.2015 г.
Ставкаот 10,25 %Первый взнос от 15 %Ежемесячный платеж от 372 276 ₽/мес При семейной ипотеке, ставке 6%, первом взносе 20% и сроком на 30 летОтправить заявкуЗаявка на ипотеку
Оставьте заявку и наш специалист свяжется с Вами в ближайшее время
-
Банк

Металлинвестбанк
лицензия №2440 от 21.11.2014 г.
Ставкаот 4,7 %Первый взнос от 10 %Ежемесячный платеж уточняйте по телефону субсидированная программа, может измениться стоимость объектаОтправить заявкуЗаявка на ипотеку
Оставьте заявку и наш специалист свяжется с Вами в ближайшее время
-
Банк

СМП Банк
лицензия № 3368 от 16.12.2014
Ставкаот 5,29 %Первый взнос от 15 %Ежемесячный платеж уточняйте по телефону субсидированная программа, может измениться стоимость объектаОтправить заявкуЗаявка на ипотеку
Оставьте заявку и наш специалист свяжется с Вами в ближайшее время
-
Банк

Абсолют Банк
лицензия №2306 от 11.08.2015 г.
Ставкаот 4,5 %Первый взнос от 15 %Ежемесячный платеж уточняйте по телефону субсидированная программа, может измениться стоимость объектаОтправить заявкуЗаявка на ипотеку
Оставьте заявку и наш специалист свяжется с Вами в ближайшее время
-
Банк

Банк ДОМ.РФ
лицензия №2312 от 19.12.2018 г.
Ставкаот 4,3 %Первый взнос от 15 %Ежемесячный платеж уточняйте по телефону субсидированная программа, может измениться стоимость объектаОтправить заявкуЗаявка на ипотеку
Оставьте заявку и наш специалист свяжется с Вами в ближайшее время
-
Банк

Россельхозбанк
лицензия №3349 от 12.08.2015 г.
Ставкаот 5 %Первый взнос от 15 %Ежемесячный платеж уточняйте по телефону субсидированная программа, может измениться стоимость объектаОтправить заявкуЗаявка на ипотеку
Оставьте заявку и наш специалист свяжется с Вами в ближайшее время
-
Банк

Газпромбанк
лицензия №354 от 29.12.2014 г.
Ставкаот 4,75 %Первый взнос от 15 %Ежемесячный платеж уточняйте по телефону субсидированная программа, может измениться стоимость объектаОтправить заявкуЗаявка на ипотеку
Оставьте заявку и наш специалист свяжется с Вами в ближайшее время
-
Банк

МИнБанк
лицензия №912 от 26.08.2015 г.
Ставкаот 5,1 %Первый взнос от 15 %Ежемесячный платеж уточняйте по телефону субсидированная программа, может измениться стоимость объектаОтправить заявкуЗаявка на ипотеку
Оставьте заявку и наш специалист свяжется с Вами в ближайшее время
-
Банк

АК Барс
лицензия №2590 от 12.08.2015 г.
Ставкаот 4,9 %Первый взнос от 15 %Ежемесячный платеж уточняйте по телефону субсидированная программа, может измениться стоимость объектаОтправить заявкуЗаявка на ипотеку
Оставьте заявку и наш специалист свяжется с Вами в ближайшее время
-
Банк

Промсвязьбанк
лицензия №3251 от 17.12.2014 г.
Ставкаот 4,5 %Первый взнос от 10 %Ежемесячный платеж уточняйте по телефону субсидированная программа, может измениться стоимость объектаОтправить заявкуЗаявка на ипотеку
Оставьте заявку и наш специалист свяжется с Вами в ближайшее время
-
Банк

Акционерный Банк "РОССИЯ"
лицензия №328 от 01.09.2016 г.
Ставкаот 5 %Первый взнос от 15 %Ежемесячный платеж уточняйте по телефону субсидированная программа, может измениться стоимость объектаОтправить заявкуЗаявка на ипотеку
Оставьте заявку и наш специалист свяжется с Вами в ближайшее время
-
Банк

Альфа-Банк
лицензия №1326 от 16.01.2015 г.
Ставкаот 4,8 %Первый взнос от 10 %Ежемесячный платеж уточняйте по телефону субсидированная программа, может измениться стоимость объектаОтправить заявкуЗаявка на ипотеку
Оставьте заявку и наш специалист свяжется с Вами в ближайшее время
-
Банк

Росбанк Дом
лицензия №2272 от 28.01.2015 г.
Ставкаот 4,6 %Первый взнос от 10 %Ежемесячный платеж уточняйте по телефону субсидированная программа, может измениться стоимость объектаОтправить заявкуЗаявка на ипотеку
Оставьте заявку и наш специалист свяжется с Вами в ближайшее время
-
Банк

Примсоцбанк
лицензия №2733 от 21.08.2015г.
Ставкаот 5 %Первый взнос от 15 %Ежемесячный платеж уточняйте по телефону субсидированная программа, может измениться стоимость объектаОтправить заявкуЗаявка на ипотеку
Оставьте заявку и наш специалист свяжется с Вами в ближайшее время
-
Банк

МТС-Банк
лицензия №2268 от 17.12.2014 г.
Ставкаот 5 %Первый взнос от 15 %Ежемесячный платеж уточняйте по телефону субсидированная программа, может измениться стоимость объектаОтправить заявкуЗаявка на ипотеку
Оставьте заявку и наш специалист свяжется с Вами в ближайшее время
-
Банк

Сбер
лицензия №1481 от 11.08.2015 г.
Ставкаот 4,1 %Первый взнос от 10 %Ежемесячный платеж уточняйте по телефону субсидированная программа, может измениться стоимость объектаОтправить заявкуЗаявка на ипотеку
Оставьте заявку и наш специалист свяжется с Вами в ближайшее время
-
Банк

Московский кредитный банк
лицензия №1978 от 06.05.2016 г.
Ставкаот 4,55 %Первый взнос от 15 %Ежемесячный платеж уточняйте по телефону субсидированная программа, может измениться стоимость объектаОтправить заявкуЗаявка на ипотеку
Оставьте заявку и наш специалист свяжется с Вами в ближайшее время
ИПОТЕКА
100 % ОПЛАТА
РЕГИСТРАЦИЯ
РАССРОЧКА
По индивидуальным условиям
Все подробности уточняйте у менеджеров продаж по телефону