Стать партнером
Контакты
+7 495 105-99-55 Для жителей Москвы и Московской области
Адрес главного офиса
121096, Москва, ул. Василисы Кожиной, д.1
Ежеденевно, 08:00 – 21:00
vsnr@vsnr.ru Офисы продаж
Вернуться к странице проекта

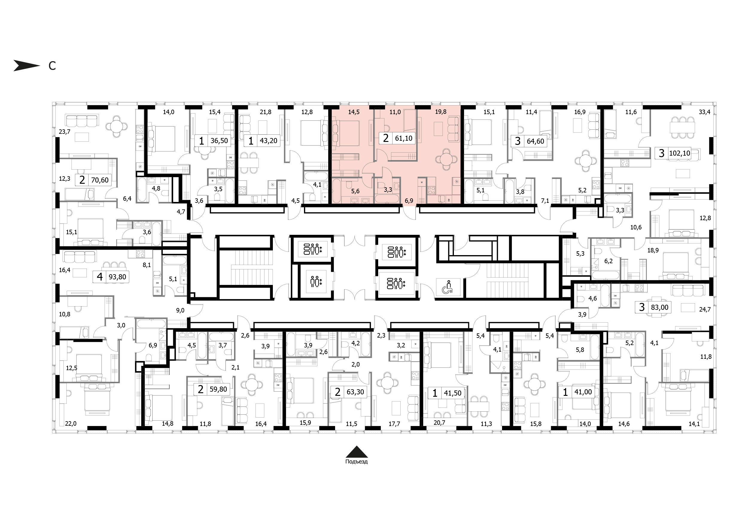
Двухкомнатная квартира 61.1 м², 22 этаж, Жилой комплекс «Moments» (Моментс)

Описание:

Комфортная двухкомнатная квартира квартира площадью 61.1 м² с отделкой . Лот расположен на 22 этаже, корпуса 2.1 жилого комплекса «Moments» (Моментс).

Комплекс находится по адресу: г. Москва, 1-й и 2-й этап: 1-й, 3-й, 4-й Красногорский проезд. 3-й этап: Волоколамское ш. вл. 26, 28, срок сдачи 2027г.. Это соединение удобной инфраструктуры городской застройки и зеленых зон отдыха.

Здания этажностью 30 эт. отличаются современным дизайном и функциональностью. Зеленая благоустроенная территория, приватный двор для жителей дома. В жилом комплексе «Moments» (Моментс) предлагаются удобные квартиры площадью от 24.8 м² до 128.8 м² с различной оснащенностью. Есть возможность покупки квартиры в ипотеку.

Стоимость квартиры с отделкой

28 146 081

460 656 ₽/м²

Корпус

Корпус 2.1

Этаж

22

Площадь

61.1 м²

Секция

1

Комнат

2

Жилой комплекс «Moments» (Моментс)
Москва, СЗАО, 1-й и 2-й этап: 1-й, 3-й, 4-й Красногорский проезд. 3-й этап: Волоколамское ш. вл. 26, 28 м. Стрешнево 5 минут пешком до м. Стрешнево

Похожие предложения

31 525 560

Этаж

26

Площадь

57 м²

Секция

3

Комнат

2

33 922 973

Этаж

30

Площадь

62.3 м²

Секция

2

Комнат

2

36 279 795

Этаж

28

Площадь

65.9 м²

Секция

3

Комнат

2

36 445 763

Этаж

36

Площадь

64.4 м²

Секция

2

Комнат

2

32 995 916

Этаж

13

Площадь

60.8 м²

Секция

2

Комнат

2

32 198 135

Этаж

20

Площадь

62.3 м²

Секция

2

Комнат

2

34 138 896

Этаж

32

Площадь

57 м²

Секция

3

Комнат

2

32 453 572

Этаж

31

Площадь

65.4 м²

Секция

3

Комнат

2

Способы приобретения

Банк

Ставка

Первый взнос

Ежемесячный платеж

  • Банк

    Абсолют Банк

    лицензия №2306 от 11.08.2015 г.

    Ставкаот 5,75 %
    Первый взнос от 20 %
    Ежемесячный платеж от 131 402 ₽/мес При семейной ипотеке, ставке 6%, первом взносе 20% и сроком на 30 лет
    Отправить заявку
  • Банк

    АК Барс

    лицензия №2590 от 12.08.2015 г.

    Ставкаот 20,3 %
    Первый взнос от 20 %
    Ежемесячный платеж от 381 820 ₽/мес При семейной ипотеке, ставке 6%, первом взносе 20% и сроком на 30 лет
    Отправить заявку
  • Банк

    Акционерный Банк "РОССИЯ"

    лицензия №328 от 01.09.2016 г.

    Ставкаот 6 %
    Первый взнос от 20 %
    Ежемесячный платеж от 135 000 ₽/мес При семейной ипотеке, ставке 6%, первом взносе 20% и сроком на 30 лет
    Отправить заявку
  • Банк

    Альфа-Банк

    лицензия №1326 от 16.01.2015 г.

    Ставкаот 6 %
    Первый взнос от 30 %
    Ежемесячный платеж от 118 125 ₽/мес При семейной ипотеке, ставке 6%, первом взносе 20% и сроком на 30 лет
    Отправить заявку
  • Банк

    Банк БЖФ

    лицензия №3138 от 01.11.2019 г.

    Ставкаот 6 %
    Первый взнос от 20 %
    Ежемесячный платеж от 135 000 ₽/мес При семейной ипотеке, ставке 6%, первом взносе 20% и сроком на 30 лет
    Отправить заявку
  • Банк

    Банк ДОМ.РФ

    лицензия №2312 от 19.12.2018 г.

    Ставкаот 6 %
    Первый взнос от 20 %
    Ежемесячный платеж от 135 000 ₽/мес При семейной ипотеке, ставке 6%, первом взносе 20% и сроком на 30 лет
    Отправить заявку
  • Банк

    Банк Санкт-Петербург

    лицензия №436 от 31.12.2014 г.

    Ставкаот 5,75 %
    Первый взнос от 20 %
    Ежемесячный платеж от 131 402 ₽/мес При семейной ипотеке, ставке 6%, первом взносе 20% и сроком на 30 лет
    Отправить заявку
  • Банк

    Банк Уралсиб

    лицензия №2275 от 10.09.2015 г.

    Ставкаот 5,99 %
    Первый взнос от 20 %
    Ежемесячный платеж от 134 855 ₽/мес При семейной ипотеке, ставке 6%, первом взносе 20% и сроком на 30 лет
    Отправить заявку
  • Банк

    ВТБ

    лицензия №1623 от 29.10.2014 г.

    Ставкаот 6 %
    Первый взнос от 30 %
    Ежемесячный платеж от 118 125 ₽/мес При семейной ипотеке, ставке 6%, первом взносе 20% и сроком на 30 лет
    Отправить заявку
  • Банк

    Газпромбанк

    лицензия №354 от 29.12.2014 г.

    Ставкаот 6 %
    Первый взнос от 20 %
    Ежемесячный платеж от 135 000 ₽/мес При семейной ипотеке, ставке 6%, первом взносе 20% и сроком на 30 лет
    Отправить заявку
  • Банк

    Металлинвестбанк

    лицензия №2440 от 21.11.2014 г.

    Ставкаот 6 %
    Первый взнос от 20 %
    Ежемесячный платеж от 135 000 ₽/мес При семейной ипотеке, ставке 6%, первом взносе 20% и сроком на 30 лет
    Отправить заявку
  • Банк

    Московский кредитный банк

    лицензия №1978 от 06.05.2016 г.

    Ставкаот 22 %
    Первый взнос от 20 %
    Ежемесячный платеж от 413 406 ₽/мес При семейной ипотеке, ставке 6%, первом взносе 20% и сроком на 30 лет
    Отправить заявку
  • Банк

    МТС-Банк

    лицензия №2268 от 17.12.2014 г.

    Ставкаот 8,56 %
    Первый взнос от 20 %
    Ежемесячный платеж от 174 094 ₽/мес При семейной ипотеке, ставке 6%, первом взносе 20% и сроком на 30 лет
    Отправить заявку
  • Банк

    Примсоцбанк

    лицензия №2733 от 21.08.2015г.

    Ставкаот 6 %
    Первый взнос от 20 %
    Ежемесячный платеж от 135 000 ₽/мес При семейной ипотеке, ставке 6%, первом взносе 20% и сроком на 30 лет
    Отправить заявку
  • Банк

    Промсвязьбанк

    лицензия №3251 от 17.12.2014 г.

    Ставкаот 6 %
    Первый взнос от 20 %
    Ежемесячный платеж от 135 000 ₽/мес При семейной ипотеке, ставке 6%, первом взносе 20% и сроком на 30 лет
    Отправить заявку
  • Банк

    Райффайзенбанк

    лицензия №3292 от 17.02.2015 г.

    Ставкаот 14,39 %
    Первый взнос от 15 %
    Ежемесячный платеж от 290 872 ₽/мес При семейной ипотеке, ставке 6%, первом взносе 20% и сроком на 30 лет
    Отправить заявку
  • Банк

    Росбанк Дом

    лицензия №2272 от 28.01.2015 г.

    Ставкаот 5 %
    Первый взнос от 20 %
    Ежемесячный платеж уточняйте по телефону субсидированная программа, может измениться стоимость объекта
    Отправить заявку
  • Банк

    Россельхозбанк

    лицензия №3349 от 12.08.2015 г.

    Ставкаот 6 %
    Первый взнос от 30 %
    Ежемесячный платеж от 118 125 ₽/мес При семейной ипотеке, ставке 6%, первом взносе 20% и сроком на 30 лет
    Отправить заявку
  • Банк

    Российский Национальный Коммерческий Банк

    лицензия №1354 от 20.05.2015 г.

    Ставкаот 6 %
    Первый взнос от 20 %
    Ежемесячный платеж от 135 000 ₽/мес При семейной ипотеке, ставке 6%, первом взносе 20% и сроком на 30 лет
    Отправить заявку
  • Банк

    Сбер

    лицензия №1481 от 11.08.2015 г.

    Ставкаот 6 %
    Первый взнос от 30 %
    Ежемесячный платеж от 118 125 ₽/мес При семейной ипотеке, ставке 6%, первом взносе 20% и сроком на 30 лет
    Отправить заявку
  • Банк

    Совкомбанк

    лицензия №963 от 05.12.2014 г.

    Ставкаот 6 %
    Первый взнос от 20 %
    Ежемесячный платеж от 135 000 ₽/мес При семейной ипотеке, ставке 6%, первом взносе 20% и сроком на 30 лет
    Отправить заявку
  • Банк

    Сургутнефтегазбанк

    лицензия №588 от 5.09.2016 г.

    Ставкаот 6 %
    Первый взнос от 20 %
    Ежемесячный платеж от 135 000 ₽/мес При семейной ипотеке, ставке 6%, первом взносе 20% и сроком на 30 лет
    Отправить заявку
  • Банк

    Транскапиталбанк

    лицензия №2210 от 02.06.2015 г.

    Ставкаот 23,5 %
    Первый взнос от 30 %
    Ежемесячный платеж от 386 194 ₽/мес При семейной ипотеке, ставке 6%, первом взносе 20% и сроком на 30 лет
    Отправить заявку
  • Банк

    Уральский банк реконструкции и развития

    Ставкаот 5 %
    Первый взнос от 20 %
    Ежемесячный платеж уточняйте по телефону субсидированная программа, может измениться стоимость объекта
    Отправить заявку
  • Банк

    ФБ Открытие

    лицензия №2209 от 24.11.2014 г.

    Ставкаот 4,59 %
    Первый взнос от 15 %
    Ежемесячный платеж уточняйте по телефону субсидированная программа, может измениться стоимость объекта
    Отправить заявку
  • Банк

    Финсервис банк

    от 21.01.2015 № 3388

    Ставкаот 6 %
    Первый взнос от 20 %
    Ежемесячный платеж от 135 000 ₽/мес При семейной ипотеке, ставке 6%, первом взносе 20% и сроком на 30 лет
    Отправить заявку
Настоящий сайт носит исключительно информационный характер, никакая информация, материалы, опубликованные на нем, ни при каких условиях не являются полностью или частично публичной офертой, определяемой положениями статьи 437 Гражданского кодекса РФ

ИПОТЕКА



100 % ОПЛАТА



РЕГИСТРАЦИЯ



РАССРОЧКА

Первый взнос: 20% / Остаток: не позднее 6 мес. от даты ДДУ (действует до 31.01.2024)

Первый взнос: 30% / Остаток: 70% - на 4 мес.

Первый взнос: 50% / Остаток: 50% - на 6 мес.

Первый взнос: 70% / Остаток: 30% - на 9 мес.




АКЦИИ



MOMENTS Этап I:

 •  «Выгодная цена 6%» на все лоты в экспозиции в 1 корпусе;

 • АКЦИЯ 10% на лот 327;

•  дополнительная скидка до 3% на все лоты в экспозиции при 100% оплате или ипотеке без субсидии (суммируется с «Выгодной ценой», не суммируется с акцией);



MOMENTS Этап II:

 •  «Выгодная цена 8%» на все лоты в экспозиции;

 •  10% на определенный пул лотов (уточняйте у менеджеров).

•  дополнительная скидка до 3% на все лоты в экспозиции при 100% оплате или ипотеке без субсидии (суммируется с «Выгодной ценой», не суммируется с акцией;





Все подробности уточняйте у менеджеров продаж по телефону
Условия Условия
Остались вопросы?
Оставьте заявку и наш специалист свяжется с вами в ближайшее время для подробной консультации
Оксана
Коммерческий директор
Продолжая пользоваться сайтом, вы соглашаетесь на обработку файлов cookie и других пользовательских данных в соответствии с Политикой конфиденциальности и обработки перс. данных.
Понятно