Вернуться к странице проекта
Комплекс находится по адресу: г. Москва, Автозаводская, срок сдачи Сдан. Это соединение удобной инфраструктуры городской застройки и зеленых зон отдыха.
Здания этажностью 1-20 эт. отличаются современным дизайном и функциональностью. Зеленая благоустроенная территория, приватный двор для жителей дома. В ЖК «FORST» (Форст) предлагаются удобные квартиры площадью от 61.17 м² до 140.4 м² с различной оснащенностью. Есть возможность покупки квартиры в ипотеку.
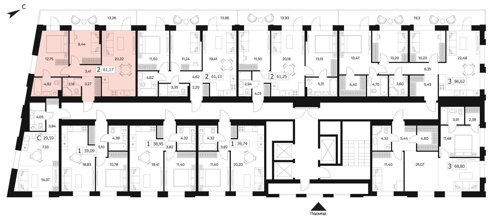
Трехкомнатная квартира №144, 61.17 м², 16 этаж, ЖК «FORST» (Форст)
Корпус 1
Описание:
Комфортная трехкомнатная квартира квартира площадью 61.17 м² без отделки. Лот расположен на 16 этаже, корпуса 1 ЖК «FORST» (Форст).Комплекс находится по адресу: г. Москва, Автозаводская, срок сдачи Сдан. Это соединение удобной инфраструктуры городской застройки и зеленых зон отдыха.
Здания этажностью 1-20 эт. отличаются современным дизайном и функциональностью. Зеленая благоустроенная территория, приватный двор для жителей дома. В ЖК «FORST» (Форст) предлагаются удобные квартиры площадью от 61.17 м² до 140.4 м² с различной оснащенностью. Есть возможность покупки квартиры в ипотеку.
Стоимость квартиры без отделки
36 278 581 ₽
593 078 ₽/м²
Ежемесячный платеж
от 174 007 ₽/мес
При семейной ипотеке, ставке 6%, первом взносе 20% и сроком на 30 лет
Корпус
Корпус 1
Условный номер
№ 144
Этаж
16
Площадь
61.17 м²
Секция
1
Комнат
3

ЖК «FORST» (Форст)
Москва, ЮАО, Автозаводская
м. Тульская
м. Автозаводская
10 минут до м. Тульская
Способы приобретения
Банк
Ставка
Первый взнос
Ежемесячный платеж
Настоящий сайт носит исключительно информационный характер, никакая информация, материалы, опубликованные на нем, ни при каких условиях не являются полностью или частично публичной офертой, определяемой положениями статьи 437 Гражданского кодекса РФ
ИПОТЕКА
Ставка 6,99% на весь период кредитования.Программа действует с Банком ВТБ (на срок от 1 до 30 лет) при выполнении 3-х условий: первый взнос — от 20%, подписание кредитного договора онлайн и комплексное страхование заемщика. Не суммируется с другими предложениями.
РАССРОЧКА
Первоначальный взнос от 30%.Остаток платежа единоразово не позднее чем, за 6 месяцев до передачи ключей. 10% на остаток платежа.
Остались вопросы?
Оставьте заявку и наш специалист свяжется с вами в ближайшее время для
подробной консультации
Оксана
Коммерческий директор

























