Стать партнером
Контакты
+7 495 105-99-55 Для жителей Москвы и Московской области
Адрес главного офиса
121096, Москва, ул. Василисы Кожиной, д.1
Ежеденевно, 08:00 – 21:00
vsnr@vsnr.ru Офисы продаж
Вернуться к странице проекта

Продажа офиса в БЦ класса А.

Описание:

Лот № 06.11.18.1

ПРОДАЖА офиса в Workplace класса А.
Архитектурную концепцию разработали бюро PANACOM. Формообразование проекта вдохновлено поэтикой приподнятого занавеса, через который открываются виды на город.

ТРАНСПОРТНАЯ ДОСТУПНОСТЬ:
- 5 минут пешком от м. Щукинская.
- 1 минута пешком от МЦД Щукинская.
На автомобиле:
-  10 минут до ТТК.
- 16 минут Кремль.
- 25 минут Аэропорт Шереметьево.

КЛЮЧЕВЫЕ ХАРАКТЕРИСТИКИ:
- Высота потолков: лобби 8, офисные этажи 3.65.
- Шаг колонн: 8.1 м.
- Панорамное остекление с функцией естественного проветривания.
- Приточно-вытяжная вентиляция, центральное кондиционирование.
- Мокрая точка в каждом офисном помещении.
- Отделка: shell&core.

РАССРОЧКА:
15% первоначальный платеж, далее на 12 месяцев равными частями.
Звоните! Подберем лучшие лоты и расскажем об арендном потенциале!

24 653 184

353 197 ₽/м²

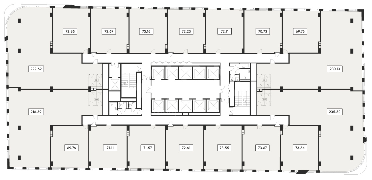
Этаж

6

Площадь

69.8 м²

Особенности

Без отделки

Тип реализации

Продажа

Тип здания

Бизнес центр

Парковка

Подземная

Вентиляция

Приточная

Кондиционирование

Центральное

Тип планировки

Открытая

Коммунальные платежи

Не включены

Эксплуатационные расходы

Не включены

Арендные каникулы

Да

БЦ JENGA
Москва, СЗАО, Полесский проезд м. Щукинская 5 минут до м Шукинская

Похожие предложения

23 687 477

Этаж

7

Площадь

70.7 м²

Отделка: Без отделки

Подробнее

23 587 007

Этаж

7

Площадь

70.4 м²

Отделка: Без отделки

Подробнее

24 240 062

Этаж

7

Площадь

72.4 м²

Отделка: Без отделки

Подробнее

24 939 200

Этаж

7

Площадь

69.8 м²

Отделка: Без отделки

Подробнее

24 713 955

Этаж

7

Площадь

70.4 м²

Отделка: Без отделки

Подробнее

24 931 761

Этаж

7

Площадь

71 м²

Отделка: Без отделки

Подробнее

25 184 697

Этаж

7

Площадь

71.7 м²

Отделка: Без отделки

Подробнее

25 852 167

Этаж

7

Площадь

73.6 м²

Отделка: Без отделки

Подробнее
Остались вопросы?
Оставьте заявку и наш специалист свяжется с вами в ближайшее время для подробной консультации
Оксана
Коммерческий директор
Продолжая пользоваться сайтом, вы соглашаетесь на обработку файлов cookie и других пользовательских данных в соответствии с Политикой конфиденциальности и обработки перс. данных.
Понятно