Стать партнером
Контакты
+7 495 105-99-55 Для жителей Москвы и Московской области
Адрес главного офиса
121096, Москва, ул. Василисы Кожиной, д.1
Ежеденевно, 08:00 – 21:00
vsnr@vsnr.ru Офисы продаж
Вернуться к странице проекта

Продажа офиса в БЦ класса А.

Описание:

Лот № 07.11.16.1

ПРОДАЖА офиса в Workplace класса А.
Архитектурную концепцию разработали бюро PANACOM. Формообразование проекта вдохновлено поэтикой приподнятого занавеса, через который открываются виды на город.

ТРАНСПОРТНАЯ ДОСТУПНОСТЬ:
- 5 минут пешком от м. Щукинская.
- 1 минута пешком от МЦД Щукинская.
На автомобиле:
-  10 минут до ТТК.
- 16 минут Кремль.
- 25 минут Аэропорт Шереметьево.

КЛЮЧЕВЫЕ ХАРАКТЕРИСТИКИ:
- Высота потолков: лобби 8, офисные этажи 3.65.
- Шаг колонн: 8.1 м.
- Панорамное остекление с функцией естественного проветривания.
- Приточно-вытяжная вентиляция, центральное кондиционирование.
- Мокрая точка в каждом офисном помещении.
- Отделка: shell&core.

РАССРОЧКА:
15% первоначальный платеж, далее на 12 месяцев равными частями.
Звоните! Подберем лучшие лоты и расскажем об арендном потенциале!

= 2 Стоимость без отделки

Цена по запросу

 

Этаж

7

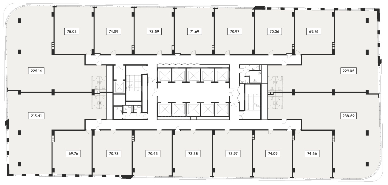
Площадь

71 м²

Особенности

Без отделки

Тип реализации

Продажа

Тип здания

Бизнес центр

Парковка

Подземная

Вентиляция

Приточная

Кондиционирование

Центральное

Тип планировки

Открытая

Коммунальные платежи

Не включены

Эксплуатационные расходы

Не включены

Арендные каникулы

Да

БЦ JENGA
Москва, СЗАО, Полесский проезд м. Щукинская 5 минут до м Шукинская

Похожие предложения

Цена по запросу

Этаж

7

Площадь

69.8 м²

Отделка: Без отделки

Подробнее

Цена по запросу

Этаж

7

Площадь

70.7 м²

Отделка: Без отделки

Подробнее

Цена по запросу

Этаж

7

Площадь

70.4 м²

Отделка: Без отделки

Подробнее

Цена по запросу

Этаж

7

Площадь

72.4 м²

Отделка: Без отделки

Подробнее

Цена по запросу

Этаж

7

Площадь

74 м²

Отделка: Без отделки

Подробнее

Цена по запросу

Этаж

7

Площадь

74.1 м²

Отделка: Без отделки

Подробнее

Цена по запросу

Этаж

7

Площадь

74.7 м²

Отделка: Без отделки

Подробнее

Цена по запросу

Этаж

7

Площадь

69.8 м²

Отделка: Без отделки

Подробнее
Остались вопросы?
Оставьте заявку и наш специалист свяжется с вами в ближайшее время для подробной консультации
Оксана
Коммерческий директор
Продолжая пользоваться сайтом, вы соглашаетесь на обработку файлов cookie и других пользовательских данных в соответствии с Политикой конфиденциальности и обработки перс. данных.
Понятно