Вернуться к списку коммерческих помещений
м. Трубная, 5 минут пешком.
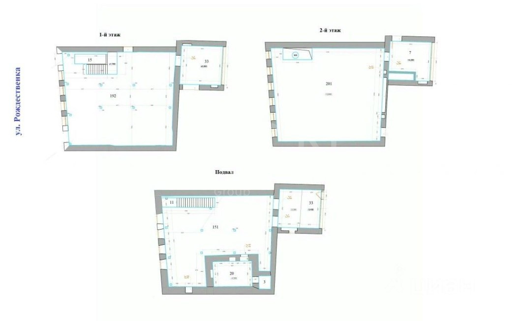
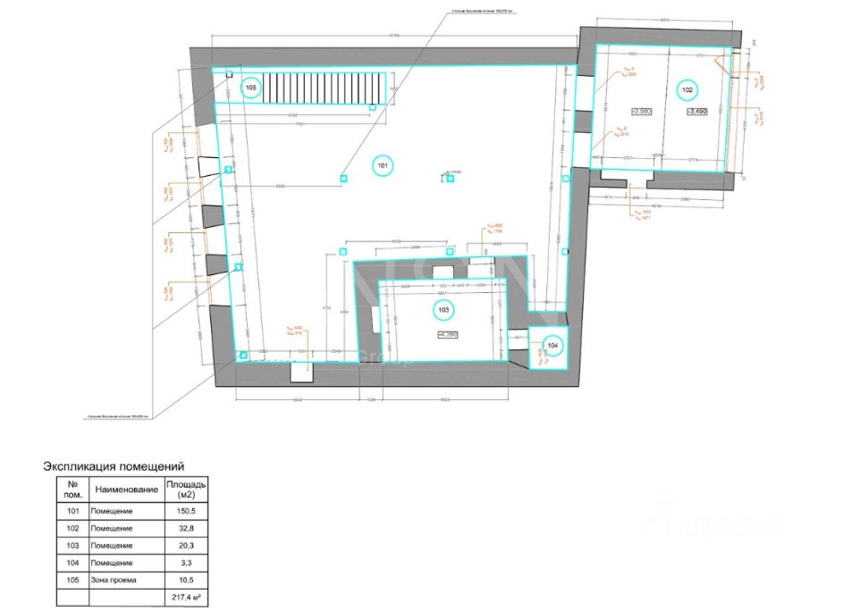
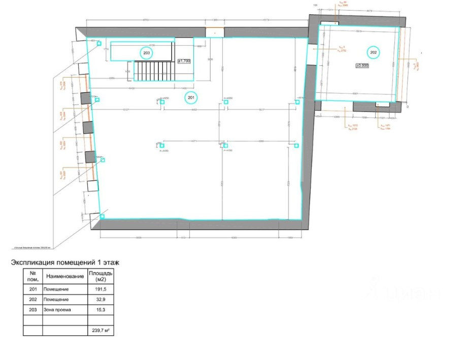
Сдаётся помещение 450 м2.
ОСНОВНЫЕ ХАРАКТЕРИСТИКИ:
1-й этаж. 1-я линия домов. 2 отдельных входа.
Витрины. Трафик. Без отделки состояние.
Высота потолков: 4 метра. 100 квт.
Вытяжка. Назначение: свободное.
ВОЗМОЖНОЕ ИСПОЛЬЗОВАНИЕ:
ресторан, магазин, бутик, шоурум, клиентский офис, банк, кафе
450 м2 Витрины.Трафик.
Описание:
Лот № 299 846
ПРЯМАЯ АРЕНДА.м. Трубная, 5 минут пешком.
Сдаётся помещение 450 м2.
ОСНОВНЫЕ ХАРАКТЕРИСТИКИ:
1-й этаж. 1-я линия домов. 2 отдельных входа.
Витрины. Трафик. Без отделки состояние.
Высота потолков: 4 метра. 100 квт.
Вытяжка. Назначение: свободное.
ВОЗМОЖНОЕ ИСПОЛЬЗОВАНИЕ:
ресторан, магазин, бутик, шоурум, клиентский офис, банк, кафе
2 750 000 / в мес ₽
6 111 ₽/м²
Этаж
1
Площадь
450 м²
Особенности
Без отделки
Тип реализации
Аренда
Тип помещения
Помещение свободного назначения
Тип здания
Административное здание
Парковка
Наземная
Вентиляция
Естественная
Кондиционирование
Местное
Тип планировки
Открытая
Тип аренды
Прямая
Коммунальные платежи
Не включены
Эксплуатационные расходы
Не включены
Арендные каникулы
Да
Адрес объекта: Рождественка улица, д.23, стр.5
Похожие предложения
Остались вопросы?
Оставьте заявку и наш специалист свяжется с вами в ближайшее время для
подробной консультации

Оксана
Коммерческий директор