Вернуться к странице проекта
Комплекс находится по адресу: г. Новая Москва, ул. Анны Ахматовой, 11к2, срок сдачи 2026г.. Это соединение удобной инфраструктуры городской застройки и зеленых зон отдыха.
Здания этажностью 20 эт. отличаются современным дизайном и функциональностью. Зеленая благоустроенная территория, приватный двор для жителей дома. В ЖК «Городские истории» предлагаются удобные квартиры площадью от 22.84 м² до 141 м² с различной оснащенностью. Есть возможность покупки квартиры в ипотеку.
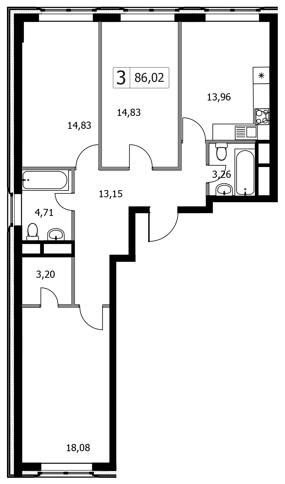
Трехкомнатная квартира 85.09 м², 17 этаж, ЖК «Городские истории», с окном в ванной
Описание:
Комфортная трехкомнатная квартира квартира площадью 85.09 м² без отделки. Лот расположен на 17 этаже, корпуса 3 очередь, корпуса 3 ЖК «Городские истории».Комплекс находится по адресу: г. Новая Москва, ул. Анны Ахматовой, 11к2, срок сдачи 2026г.. Это соединение удобной инфраструктуры городской застройки и зеленых зон отдыха.
Здания этажностью 20 эт. отличаются современным дизайном и функциональностью. Зеленая благоустроенная территория, приватный двор для жителей дома. В ЖК «Городские истории» предлагаются удобные квартиры площадью от 22.84 м² до 141 м² с различной оснащенностью. Есть возможность покупки квартиры в ипотеку.
Стоимость квартиры без отделки
25 284 204 ₽
23 767 152 ₽
279 318 ₽/м²
Ежемесячный платеж
от 113 997 ₽/мес
При семейной ипотеке, ставке 6%, первом взносе 20% и сроком на 30 лет
Корпус
3 очередь, Корпус 3
Этаж
17
Площадь
85.09 м²
Секция
1
Комнат
3

ЖК «Городские истории»
Новая Москва, Новомосковский, ул. Анны Ахматовой, 11к2
м. Рассказовка
2 минуты пешком до м. Рассказовка
Похожие предложения
Способы приобретения
Банк
Ставка
Первый взнос
Ежемесячный платеж
Настоящий сайт носит исключительно информационный характер, никакая информация, материалы, опубликованные на нем, ни при каких условиях не являются полностью или частично публичной офертой, определяемой положениями статьи 437 Гражданского кодекса РФ
ИПОТЕКА
100 % ОПЛАТА
РЕГИСТРАЦИЯ
РАССРОЧКА
По индивидуальным условиям
Все подробности уточняйте у менеджеров продаж по телефону
Остались вопросы?
Оставьте заявку и наш специалист свяжется с вами в ближайшее время для
подробной консультации
Оксана
Коммерческий директор

















