Вернуться к странице проекта
Комплекс находится по адресу: г. Москва, Волоколамское ш., д.95-97, срок сдачи 2027г.. Это соединение удобной инфраструктуры городской застройки и зеленых зон отдыха.
Здания этажностью 10-53 эт. отличаются современным дизайном и функциональностью. Зеленая благоустроенная территория, приватный двор для жителей дома. В ЖК «Сити Бэй» (City Bay) предлагаются удобные квартиры площадью от 25.9 м² до 185.41 м² с различной оснащенностью. Есть возможность покупки квартиры в ипотеку.
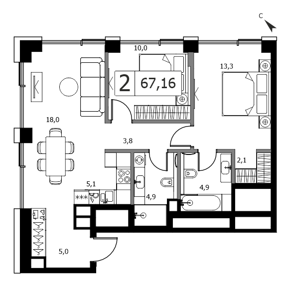
Двухкомнатная квартира 69.12 м², 11 этаж, ЖК «Сити Бэй» (City Bay)
Норс 11
Описание:
Комфортная двухкомнатная квартира квартира площадью 69.12 м² без отделки. Лот расположен на 11 этаже, корпуса North 11 ЖК «Сити Бэй» (City Bay).Комплекс находится по адресу: г. Москва, Волоколамское ш., д.95-97, срок сдачи 2027г.. Это соединение удобной инфраструктуры городской застройки и зеленых зон отдыха.
Здания этажностью 10-53 эт. отличаются современным дизайном и функциональностью. Зеленая благоустроенная территория, приватный двор для жителей дома. В ЖК «Сити Бэй» (City Bay) предлагаются удобные квартиры площадью от 25.9 м² до 185.41 м² с различной оснащенностью. Есть возможность покупки квартиры в ипотеку.
Стоимость квартиры без отделки
29 058 947 ₽
26 153 052 ₽
378 372 ₽/м²
Ежемесячный платеж
от 125 441 ₽/мес
При семейной ипотеке, ставке 6%, первом взносе 20% и сроком на 30 лет
Корпус
North 11
Этаж
11
Площадь
69.12 м²
Секция
1
Комнат
2

ЖК «Сити Бэй» (City Bay)
Москва, СЗАО, Волоколамское ш., д.95-97
м. Мякинино
5 минут пешком до м. Трикотажная
Похожие предложения
Способы приобретения
Банк
Ставка
Первый взнос
Ежемесячный платеж
Настоящий сайт носит исключительно информационный характер, никакая информация, материалы, опубликованные на нем, ни при каких условиях не являются полностью или частично публичной офертой, определяемой положениями статьи 437 Гражданского кодекса РФ
ИПОТЕКА
100 % ОПЛАТА
РЕГИСТРАЦИЯ
РАССРОЧКА
По индивидуальным условиям
Все подробности уточняйте у менеджеров продаж по телефону
Остались вопросы?
Оставьте заявку и наш специалист свяжется с вами в ближайшее время для
подробной консультации
Оксана
Коммерческий директор
























