Вернуться к странице проекта
Комплекс находится по адресу: г. Москва, ул Южнопортовая, срок сдачи 2028г.. Это соединение удобной инфраструктуры городской застройки и зеленых зон отдыха.
Здания этажностью 22-29 эт. отличаются современным дизайном и функциональностью. Зеленая благоустроенная территория, приватный двор для жителей дома. В жилом комплексе «PORTLAND» (Портленд) предлагаются удобные квартиры площадью от 25.1 м² до 115.7 м² с различной оснащенностью. Есть возможность покупки квартиры в ипотеку.
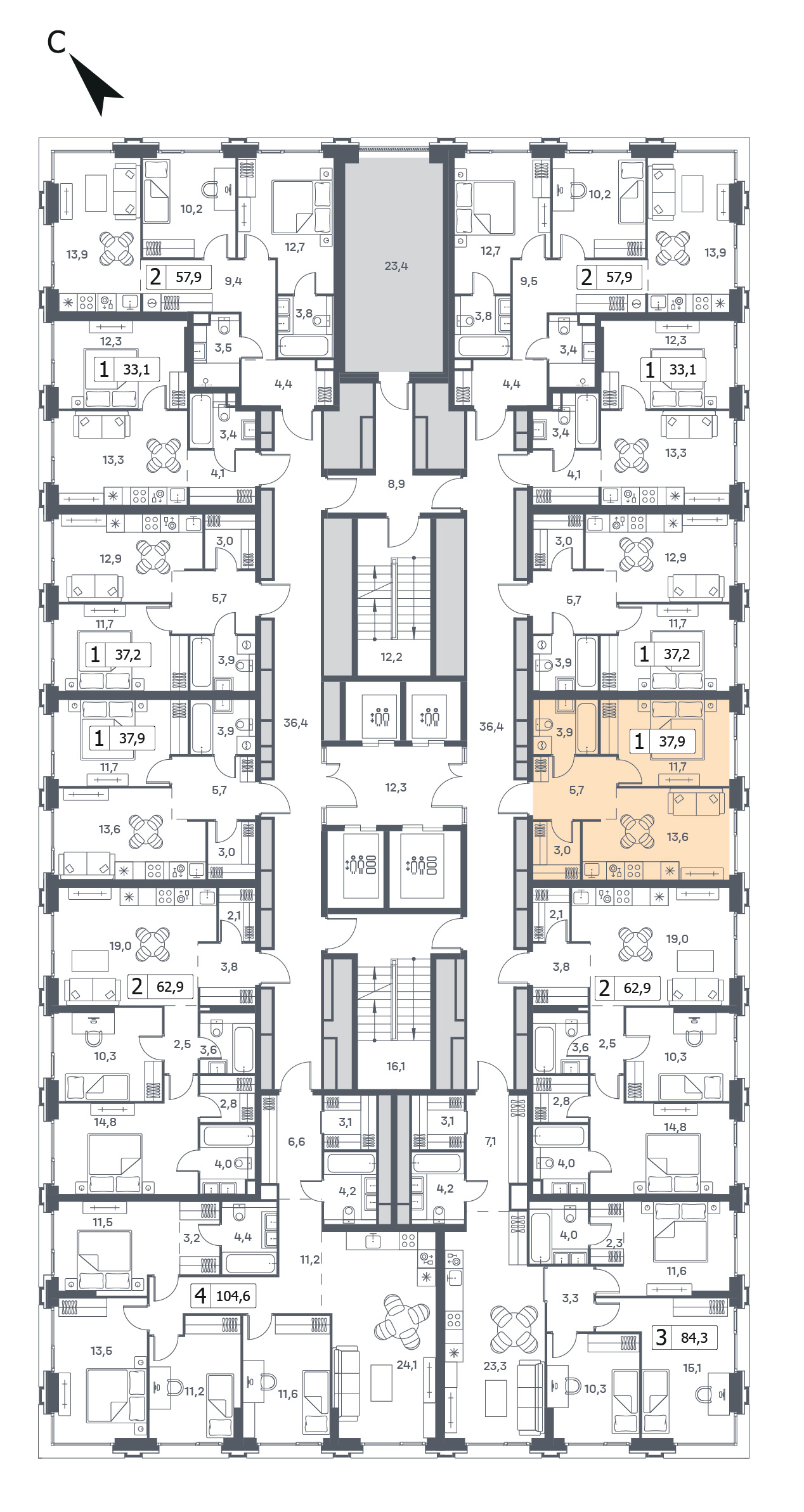
Однокомнатная квартира 37.9 м², 15 этаж, Жилой комплекс «PORTLAND» (Портленд)
Корпус 8
Описание:
Комфортная однокомнатная квартира квартира площадью 37.9 м² с отделкой . Лот расположен на 15 этаже, корпуса 8 жилого комплекса «PORTLAND» (Портленд).Комплекс находится по адресу: г. Москва, ул Южнопортовая, срок сдачи 2028г.. Это соединение удобной инфраструктуры городской застройки и зеленых зон отдыха.
Здания этажностью 22-29 эт. отличаются современным дизайном и функциональностью. Зеленая благоустроенная территория, приватный двор для жителей дома. В жилом комплексе «PORTLAND» (Портленд) предлагаются удобные квартиры площадью от 25.1 м² до 115.7 м² с различной оснащенностью. Есть возможность покупки квартиры в ипотеку.
Стоимость квартиры с отделкой
25 366 470 ₽
669 300 ₽/м²
Ежемесячный платеж
от 121 668 ₽/мес
При семейной ипотеке, ставке 6%, первом взносе 20% и сроком на 30 лет
Корпус
Корпус 8
Этаж
15
Площадь
37.9 м²
Секция
1
Комнат
1

Жилой комплекс «PORTLAND» (Портленд)
Москва, ЮВАО, ул Южнопортовая
12 минут пешком до м. Печатники
Похожие предложения
Способы приобретения
Банк
Ставка
Первый взнос
Ежемесячный платеж
Настоящий сайт носит исключительно информационный характер, никакая информация, материалы, опубликованные на нем, ни при каких условиях не являются полностью или частично публичной офертой, определяемой положениями статьи 437 Гражданского кодекса РФ
ИПОТЕКА
100 % ОПЛАТА
РЕГИСТРАЦИЯ
РАССРОЧКА
По индивидуальным условиям
Все подробности уточняйте у менеджеров продаж по телефону
Остались вопросы?
Оставьте заявку и наш специалист свяжется с вами в ближайшее время для
подробной консультации
Оксана
Коммерческий директор
























