Вернуться к странице проекта
Комплекс находится по адресу: г. Москва, ул Верейская. Это соединение удобной инфраструктуры городской застройки и зеленых зон отдыха.
Здания этажностью 61 эт. отличаются современным дизайном и функциональностью. Зеленая благоустроенная территория, приватный двор для жителей дома. В жилом комплексе «VEER» (Веер) предлагаются удобные квартиры площадью от 20.7 м² до 115.6 м² с различной оснащенностью. Есть возможность покупки квартиры в ипотеку.
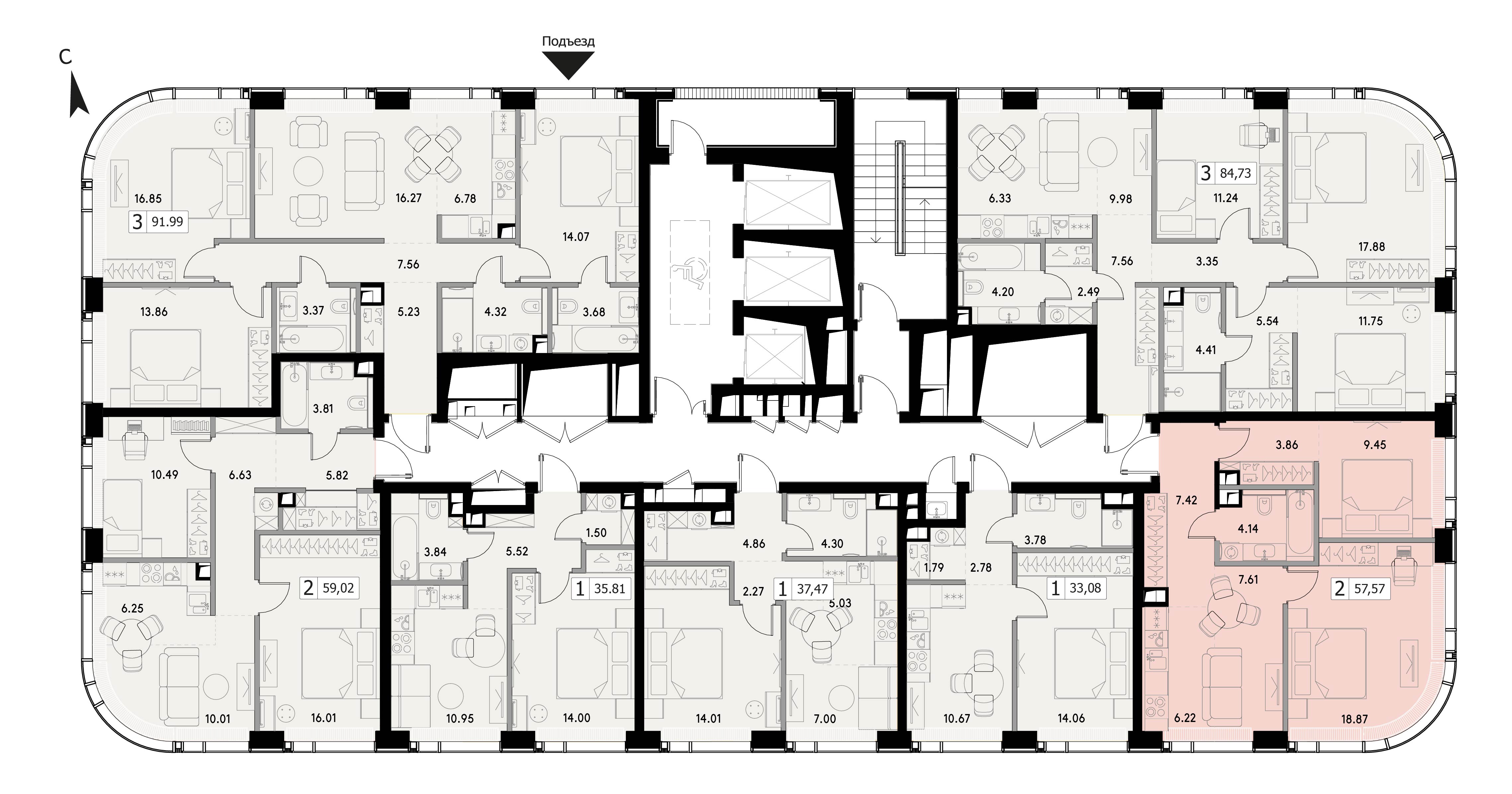
Двухкомнатная квартира 57.57 м², 12 этаж, Жилой комплекс «VEER» (Веер)
Описание:
Комфортная двухкомнатная квартира квартира площадью 57.57 м² без отделки. Лот расположен на 12 этаже, корпуса 1.1 жилого комплекса «VEER» (Веер).Комплекс находится по адресу: г. Москва, ул Верейская. Это соединение удобной инфраструктуры городской застройки и зеленых зон отдыха.
Здания этажностью 61 эт. отличаются современным дизайном и функциональностью. Зеленая благоустроенная территория, приватный двор для жителей дома. В жилом комплексе «VEER» (Веер) предлагаются удобные квартиры площадью от 20.7 м² до 115.6 м² с различной оснащенностью. Есть возможность покупки квартиры в ипотеку.
Стоимость квартиры без отделки
27 909 936 ₽
484 800 ₽/м²
Ежемесячный платеж
от 133 867 ₽/мес
При семейной ипотеке, ставке 6%, первом взносе 20% и сроком на 30 лет
Корпус
Корпус 1.1
Этаж
12
Площадь
57.57 м²
Секция
1
Комнат
2

Жилой комплекс «VEER» (Веер)
Москва, ЗАО, ул Верейская
м. Аминьевская
5 минут на транспорте до метро Давыдково
Похожие предложения
Способы приобретения
Банк
Ставка
Первый взнос
Ежемесячный платеж
Настоящий сайт носит исключительно информационный характер, никакая информация, материалы, опубликованные на нем, ни при каких условиях не являются полностью или частично публичной офертой, определяемой положениями статьи 437 Гражданского кодекса РФ
ИПОТЕКА
100 % ОПЛАТА
РЕГИСТРАЦИЯ
РАССРОЧКА
По индивидуальным условиям
Все подробности уточняйте у менеджеров продаж по телефону
Остались вопросы?
Оставьте заявку и наш специалист свяжется с вами в ближайшее время для
подробной консультации
Оксана
Коммерческий директор























