Вернуться к странице проекта
Комплекс находится по адресу: г. Москва, ул. Верейская, срок сдачи 2028г.. Это соединение удобной инфраструктуры городской застройки и зеленых зон отдыха.
Здания этажностью 59 эт. отличаются современным дизайном и функциональностью. Зеленая благоустроенная территория, приватный двор для жителей дома. В жилом комплексе «SET» (Сэт) предлагаются удобные квартиры площадью от 22.9 м² до 132.84 м² с различной оснащенностью. Есть возможность покупки квартиры в ипотеку.
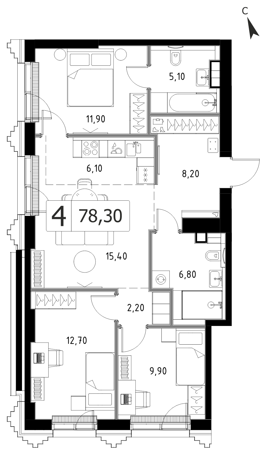
Четырехкомнатная квартира 78.3 м², 3 этаж, Жилой комплекс «SET» (Сэт)
SET 1 - корп. 2
SET 1 - корп. 2
Готовность: III кв. 2028
2 комн.
от 34.1 м2
от 24 430 000 ₽
3 комн.
от 53.3 м2
от 30 296 000 ₽
4 комн.
от 76.6 м2
от 43 290 000 ₽
5+ комн.
от 102.1 м2
от 56 155 000 ₽
141 квартира в продаже
Описание:
Комфортная четырехкомнатная квартира квартира площадью 78.3 м² без отделки. Лот расположен на 3 этаже, корпуса 2 жилого комплекса «SET» (Сэт).Комплекс находится по адресу: г. Москва, ул. Верейская, срок сдачи 2028г.. Это соединение удобной инфраструктуры городской застройки и зеленых зон отдыха.
Здания этажностью 59 эт. отличаются современным дизайном и функциональностью. Зеленая благоустроенная территория, приватный двор для жителей дома. В жилом комплексе «SET» (Сэт) предлагаются удобные квартиры площадью от 22.9 м² до 132.84 м² с различной оснащенностью. Есть возможность покупки квартиры в ипотеку.
Стоимость квартиры без отделки
43 848 000 ₽
560 000 ₽/м²
Ежемесячный платеж
от 210 313 ₽/мес
При семейной ипотеке, ставке 6%, первом взносе 20% и сроком на 30 лет
Корпус
Корпус 2
Этаж
3
Площадь
78.3 м²
Секция
1
Комнат
4

Жилой комплекс «SET» (Сэт)
Москва, ул. Верейская
м. Давыдково
20 минут до м. Давыдково
Похожие предложения
Способы приобретения
Банк
Ставка
Первый взнос
Ежемесячный платеж
Настоящий сайт носит исключительно информационный характер, никакая информация, материалы, опубликованные на нем, ни при каких условиях не являются полностью или частично публичной офертой, определяемой положениями статьи 437 Гражданского кодекса РФ
100 % оплата и ипотека
Система Trade-In
Удобная покупка по новой системе Trade-In
Рассрочка
*Все подробности уточняйте у менеджеров продаж по телефону: +7 495 126-43-39.
Остались вопросы?
Оставьте заявку и наш специалист свяжется с вами в ближайшее время для
подробной консультации
Оксана
Коммерческий директор





















