Вернуться к странице проекта
                
                
                    
                    
                                                    
                                 
                                
                            
                                                                            
                                 
                                
                            
                                                
                                                    
                                
                            
                        	
	                                                
                                
                                    
                                        
                                    
                                
                            
	                                        
                                                    
                                
Комплекс находится по адресу: г. Москва, ул Южнопортовая, срок сдачи 2028г.. Это соединение удобной инфраструктуры городской застройки и зеленых зон отдыха.
Здания этажностью 22-29 эт. отличаются современным дизайном и функциональностью. Зеленая благоустроенная территория, приватный двор для жителей дома. В жилом комплексе «PORTLAND» (Портленд) предлагаются удобные квартиры площадью от 24.3 м² до 115.7 м² с различной оснащенностью. Есть возможность покупки квартиры в ипотеку.
                                        
            
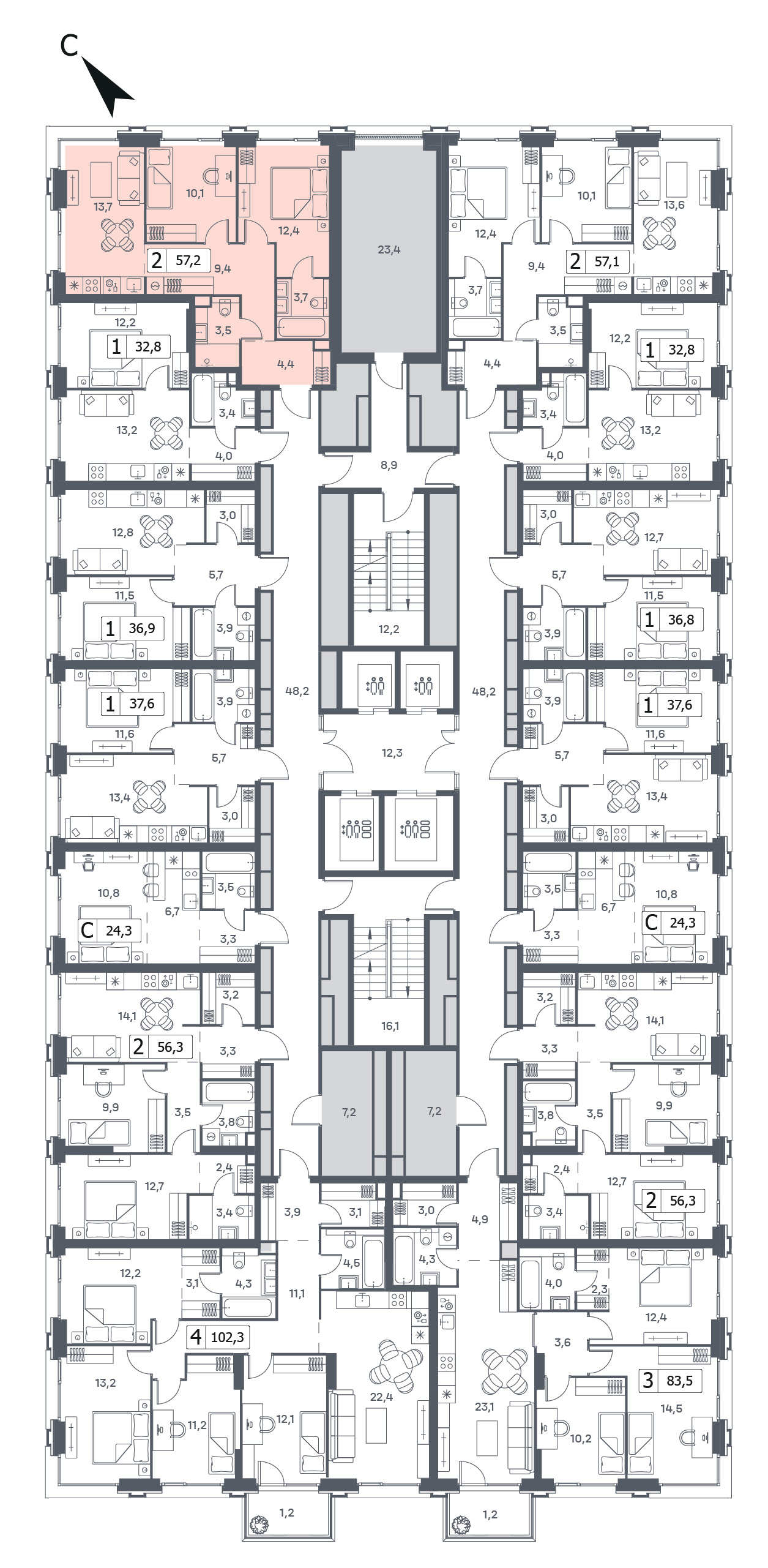
            Двухкомнатная квартира №561, 57.2 м², 11 этаж, Жилой комплекс «PORTLAND» (Портленд)
 
                                 
                                Описание:
Комфортная двухкомнатная квартира квартира площадью 57.2 м² с отделкой . Лот расположен на 11 этаже, корпуса 8 жилого комплекса «PORTLAND» (Портленд).Комплекс находится по адресу: г. Москва, ул Южнопортовая, срок сдачи 2028г.. Это соединение удобной инфраструктуры городской застройки и зеленых зон отдыха.
Здания этажностью 22-29 эт. отличаются современным дизайном и функциональностью. Зеленая благоустроенная территория, приватный двор для жителей дома. В жилом комплексе «PORTLAND» (Портленд) предлагаются удобные квартиры площадью от 24.3 м² до 115.7 м² с различной оснащенностью. Есть возможность покупки квартиры в ипотеку.
Стоимость квартиры с отделкой
31 368 480 ₽
548 400 ₽/м²
Ежемесячный платеж
                                               от 150 456  ₽/мес 
                                                При семейной ипотеке, ставке 6%, первом взносе 20% и сроком на 30 лет
                                            
                                        Корпус
Корпус 8
Условный номер
№ 561
Этаж
11
Площадь
57.2 м²
Секция
1
Комнат
2

                Жилой комплекс «PORTLAND» (Портленд)
                
        
                    Москва, ЮВАО, ул Южнопортовая
                    
                                                            12 минут пешком до м. Печатники
                
            Похожие предложения
Способы приобретения
Банк
Ставка
Первый взнос
Ежемесячный платеж
        Настоящий сайт носит исключительно информационный характер, никакая информация, материалы, опубликованные на нем, ни при каких условиях не являются полностью или частично публичной офертой, определяемой положениями статьи 437 Гражданского кодекса РФ
    
ИПОТЕКА
100 % ОПЛАТА
РЕГИСТРАЦИЯ
РАССРОЧКА
По индивидуальным условиям
Все подробности уточняйте у менеджеров продаж по телефону
 
                                     
                                Остались вопросы?
        
                    Оставьте заявку и наш специалист свяжется с вами в ближайшее время для
                    подробной консультации
             
                        Оксана
                            Коммерческий директор
                         
                
             
                 
                                                                                 
                                                                                 
                                                                                 
                                                                                 
                                                                                 
                                                                                 
                                                                                 
                                                                                 
                             
                             
                             
                            























