Вернуться к странице проекта
Комплекс находится по адресу: г. Москва, Ленинградский пр., вл. 8, срок сдачи 2027г.. Это соединение удобной инфраструктуры городской застройки и зеленых зон отдыха.
Здания этажностью 39 эт. отличаются современным дизайном и функциональностью. Зеленая благоустроенная территория, приватный двор для жителей дома. В МФК «SLAVA» (Слава) предлагаются удобные квартиры площадью от 28.1 м² до 201 м² с различной оснащенностью. Есть возможность покупки квартиры в ипотеку.
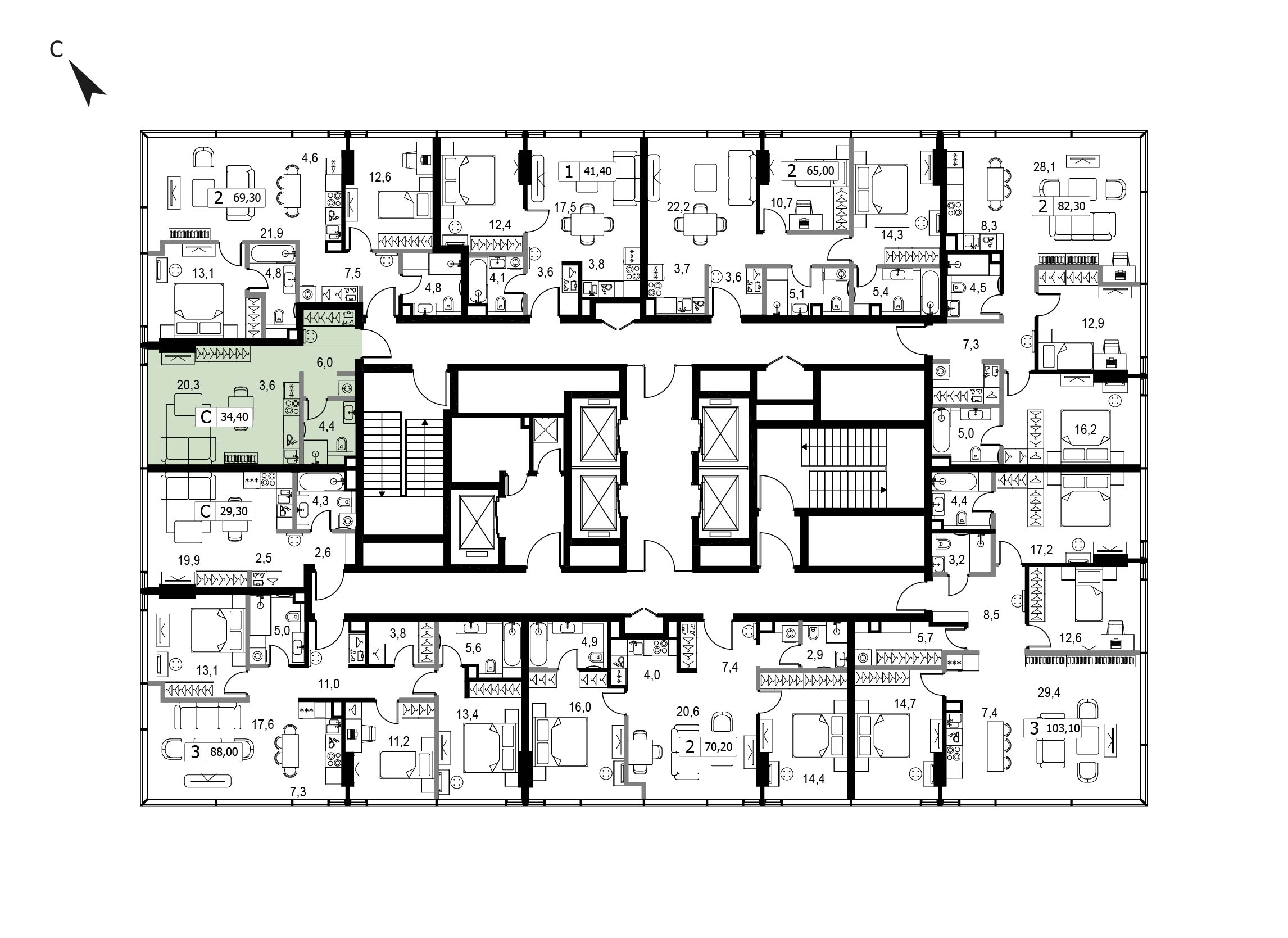
Студия №811, 34.3 м², 22 этаж, МФК «SLAVA» (Слава)



Корпус F
Описание:
Комфортная студия квартира площадью 34.3 м² без отделки. Лот расположен на 22 этаже, корпуса F МФК «SLAVA» (Слава).Комплекс находится по адресу: г. Москва, Ленинградский пр., вл. 8, срок сдачи 2027г.. Это соединение удобной инфраструктуры городской застройки и зеленых зон отдыха.
Здания этажностью 39 эт. отличаются современным дизайном и функциональностью. Зеленая благоустроенная территория, приватный двор для жителей дома. В МФК «SLAVA» (Слава) предлагаются удобные квартиры площадью от 28.1 м² до 201 м² с различной оснащенностью. Есть возможность покупки квартиры в ипотеку.
Стоимость квартиры без отделки
33 754 630 ₽
984 100 ₽/м²
Ежемесячный платеж
от 161 901 ₽/мес
При семейной ипотеке, ставке 6%, первом взносе 20% и сроком на 30 лет
Корпус
Корпус F
Условный номер
№ 811
Этаж
22
Площадь
34.3 м²
Секция
1
Комнат
Студия

МФК «SLAVA» (Слава)
Москва, САО, Ленинградский пр., вл. 8
м. Белорусская
Похожие предложения
Способы приобретения
Банк
Ставка
Первый взнос
Ежемесячный платеж
Настоящий сайт носит исключительно информационный характер, никакая информация, материалы, опубликованные на нем, ни при каких условиях не являются полностью или частично публичной офертой, определяемой положениями статьи 437 Гражданского кодекса РФ
Остались вопросы?
Оставьте заявку и наш специалист свяжется с вами в ближайшее время для
подробной консультации

Оксана
Коммерческий директор