Вернуться к странице проекта
Комплекс находится по адресу: г. Москва, 1-й и 2-й этап: 1-й, 3-й, 4-й Красногорский проезд. 3-й этап: Волоколамское ш. вл. 26, 28, срок сдачи 2027г.. Это соединение удобной инфраструктуры городской застройки и зеленых зон отдыха.
Здания этажностью 30 эт. отличаются современным дизайном и функциональностью. Зеленая благоустроенная территория, приватный двор для жителей дома. В жилом комплексе «Moments» (Моментс) предлагаются удобные квартиры площадью от 26.4 м² до 128.8 м² с различной оснащенностью. Есть возможность покупки квартиры в ипотеку.
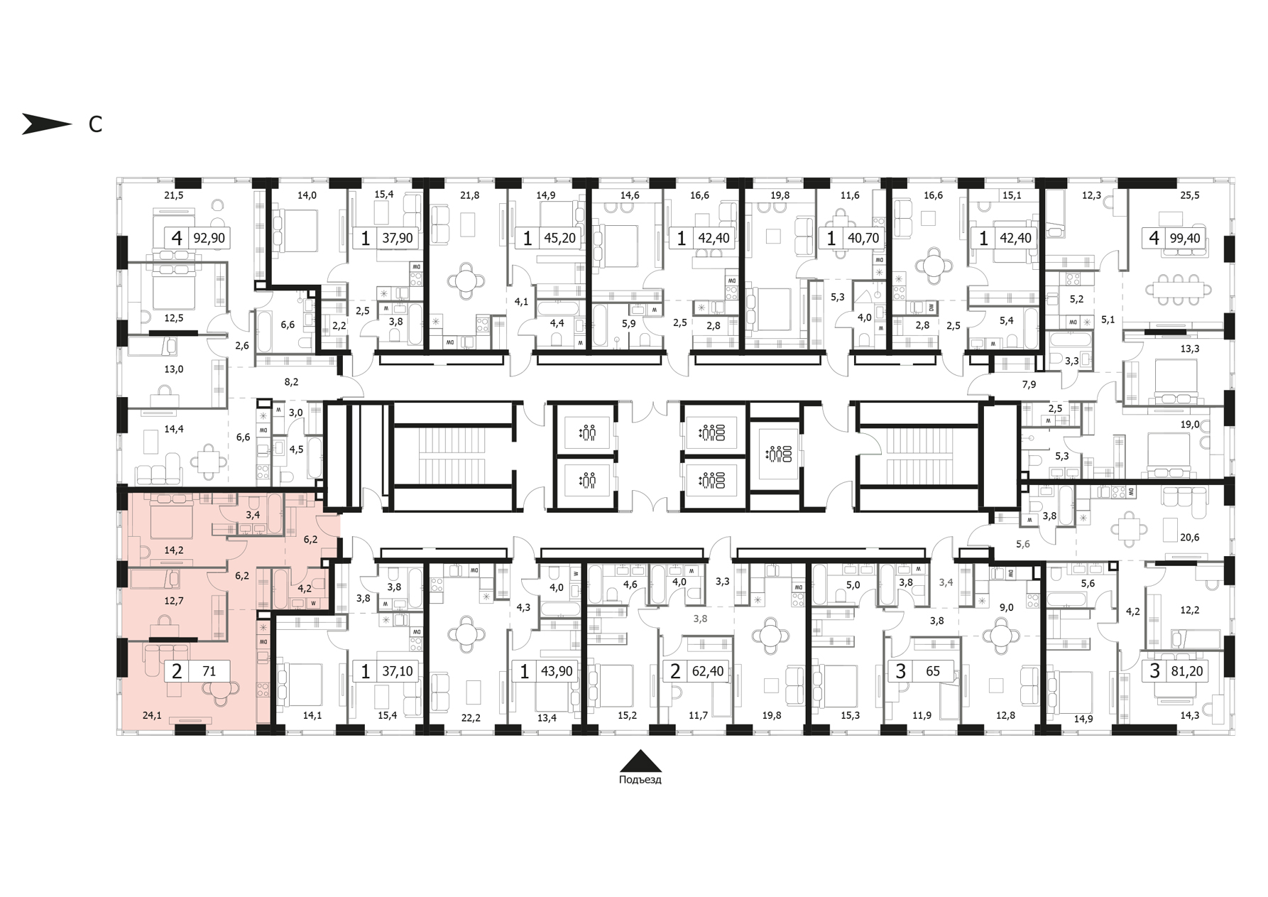
Двухкомнатная квартира 71 м², 15 этаж, Жилой комплекс «Moments» (Моментс)
Корпус 2.3
Описание:
Комфортная двухкомнатная квартира квартира площадью 71 м² с отделкой . Лот расположен на 15 этаже, корпуса 2.3 жилого комплекса «Moments» (Моментс).Комплекс находится по адресу: г. Москва, 1-й и 2-й этап: 1-й, 3-й, 4-й Красногорский проезд. 3-й этап: Волоколамское ш. вл. 26, 28, срок сдачи 2027г.. Это соединение удобной инфраструктуры городской застройки и зеленых зон отдыха.
Здания этажностью 30 эт. отличаются современным дизайном и функциональностью. Зеленая благоустроенная территория, приватный двор для жителей дома. В жилом комплексе «Moments» (Моментс) предлагаются удобные квартиры площадью от 26.4 м² до 128.8 м² с различной оснащенностью. Есть возможность покупки квартиры в ипотеку.
Стоимость квартиры с отделкой
39 554 100 ₽
557 100 ₽/м²
Ежемесячный платеж
от 189 717 ₽/мес
При семейной ипотеке, ставке 6%, первом взносе 20% и сроком на 30 лет
Корпус
Корпус 2.3
Этаж
15
Площадь
71 м²
Секция
2
Комнат
2

Жилой комплекс «Moments» (Моментс)
Москва, СЗАО, 1-й и 2-й этап: 1-й, 3-й, 4-й Красногорский проезд. 3-й этап: Волоколамское ш. вл. 26, 28
м. Стрешнево
5 минут пешком до м. Стрешнево
Похожие предложения
Способы приобретения
Банк
Ставка
Первый взнос
Ежемесячный платеж
Настоящий сайт носит исключительно информационный характер, никакая информация, материалы, опубликованные на нем, ни при каких условиях не являются полностью или частично публичной офертой, определяемой положениями статьи 437 Гражданского кодекса РФ
ИПОТЕКА
100 % ОПЛАТА
РЕГИСТРАЦИЯ
РАССРОЧКА
Первый взнос: 20% / Остаток: не позднее 6 мес. от даты ДДУ (действует до 31.01.2024)Первый взнос: 30% / Остаток: 70% - на 4 мес.
Первый взнос: 50% / Остаток: 50% - на 6 мес.
Первый взнос: 70% / Остаток: 30% - на 9 мес.
АКЦИИ
MOMENTS Этап I:
• «Выгодная цена 6%» на все лоты в экспозиции в 1 корпусе;
• АКЦИЯ 10% на лот 327;
• дополнительная скидка до 3% на все лоты в экспозиции при 100% оплате или ипотеке без субсидии (суммируется с «Выгодной ценой», не суммируется с акцией);
MOMENTS Этап II:
• «Выгодная цена 8%» на все лоты в экспозиции;
• 10% на определенный пул лотов (уточняйте у менеджеров).
• дополнительная скидка до 3% на все лоты в экспозиции при 100% оплате или ипотеке без субсидии (суммируется с «Выгодной ценой», не суммируется с акцией;
Все подробности уточняйте у менеджеров продаж по телефону
Остались вопросы?
Оставьте заявку и наш специалист свяжется с вами в ближайшее время для
подробной консультации
Оксана
Коммерческий директор

























