Вернуться к странице проекта
Комплекс находится по адресу: г. Москва, Вишневая, срок сдачи 2027г.. Это соединение удобной инфраструктуры городской застройки и зеленых зон отдыха.
Здания этажностью 10-53 эт. отличаются современным дизайном и функциональностью. Зеленая благоустроенная территория, приватный двор для жителей дома. В ЖК «СитидЗен» (Cityzen) предлагаются удобные квартиры площадью от 23.8 м² до 109.5 м² с различной оснащенностью. Есть возможность покупки квартиры в ипотеку.
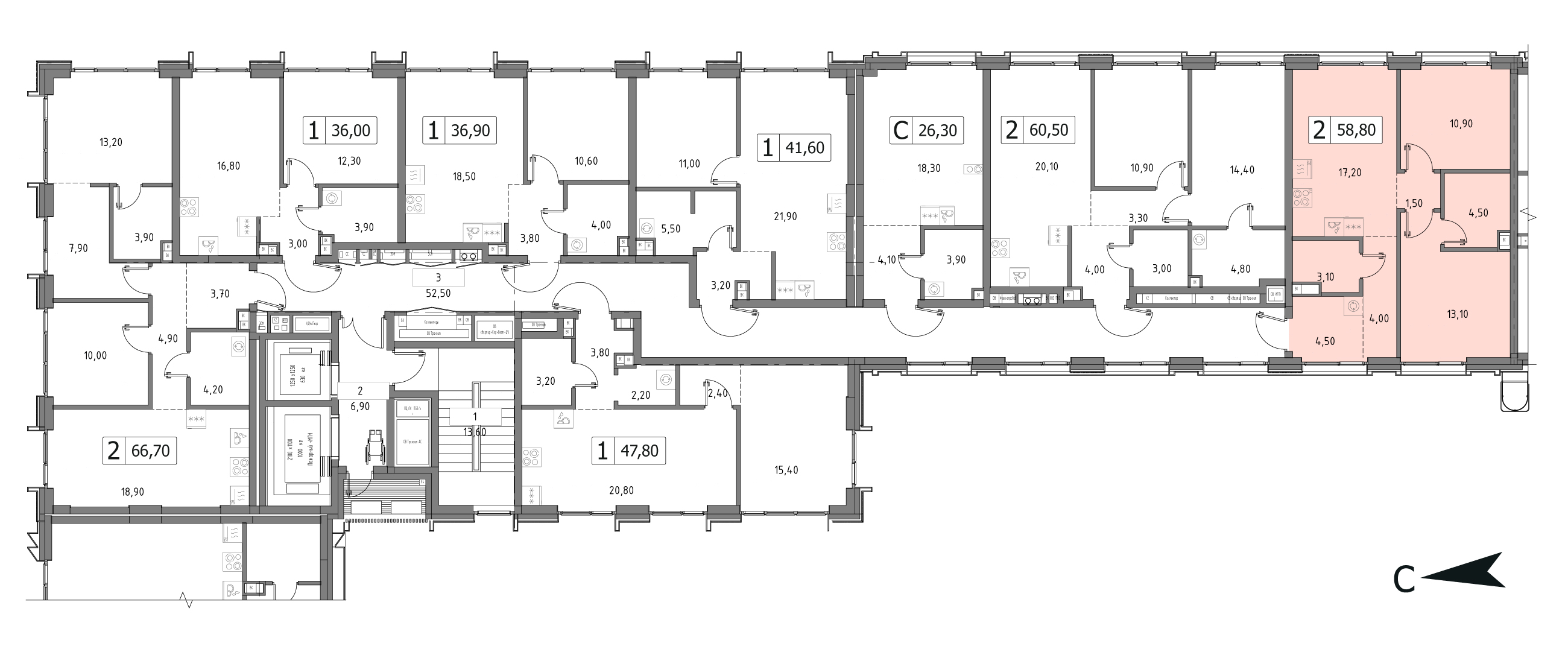
Двухкомнатная квартира 58.8 м², 3 этаж, ЖК «СитидЗен» (Cityzen)
Описание:
Комфортная двухкомнатная квартира квартира площадью 58.8 м² без отделки. Лот расположен на 3 этаже, корпуса 4 ЖК «СитидЗен» (Cityzen).Комплекс находится по адресу: г. Москва, Вишневая, срок сдачи 2027г.. Это соединение удобной инфраструктуры городской застройки и зеленых зон отдыха.
Здания этажностью 10-53 эт. отличаются современным дизайном и функциональностью. Зеленая благоустроенная территория, приватный двор для жителей дома. В ЖК «СитидЗен» (Cityzen) предлагаются удобные квартиры площадью от 23.8 м² до 109.5 м² с различной оснащенностью. Есть возможность покупки квартиры в ипотеку.
Стоимость квартиры без отделки
27 665 400 ₽
470 500 ₽/м²
Ежемесячный платеж
от 132 694 ₽/мес
При семейной ипотеке, ставке 6%, первом взносе 20% и сроком на 30 лет
Корпус
Корпус 4
Этаж
3
Площадь
58.8 м²
Секция
1
Комнат
2

ЖК «СитидЗен» (Cityzen)
Москва, СЗАО, Вишневая
м. Тушинская
3 минуты пешком до метро Тушинская
Похожие предложения
Способы приобретения
Банк
Ставка
Первый взнос
Ежемесячный платеж
Настоящий сайт носит исключительно информационный характер, никакая информация, материалы, опубликованные на нем, ни при каких условиях не являются полностью или частично публичной офертой, определяемой положениями статьи 437 Гражданского кодекса РФ
ИПОТЕКА
100 % ОПЛАТА
РЕГИСТРАЦИЯ
РАССРОЧКА
По индивидуальным условиям
Все подробности уточняйте у менеджеров продаж по телефону
Остались вопросы?
Оставьте заявку и наш специалист свяжется с вами в ближайшее время для
подробной консультации
Оксана
Коммерческий директор






















