Вернуться к странице проекта
Комплекс находится по адресу: г. Москва, Куусинена, срок сдачи 2026г.. Это соединение удобной инфраструктуры городской застройки и зеленых зон отдыха.
Здания этажностью 23-28 эт. отличаются современным дизайном и функциональностью. Зеленая благоустроенная территория, приватный двор для жителей дома. В ЖК «ИНДИ Тауэрс» (INDY Towers) предлагаются удобные квартиры площадью от 21.2 м² до 118.6 м² с различной оснащенностью. Есть возможность покупки квартиры в ипотеку.
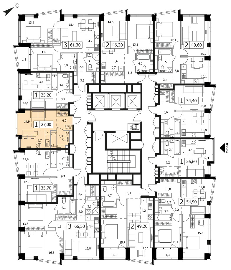
Студия 27 м², 15 этаж, ЖК «ИНДИ Тауэрс» (INDY Towers)
Корпус B
Корпус B
Готовность: IV кв. 2026
Студии
от 26.5 м2
от 14 059 802 ₽
1 комн.
от 33.5 м2
от 16 116 512 ₽
2 комн.
от 67.4 м2
от 30 155 451 ₽
8 квартир в продаже
Описание:
Комфортная студия квартира площадью 27 м² с отделкой . Лот расположен на 15 этаже, корпуса B ЖК «ИНДИ Тауэрс» (INDY Towers).Комплекс находится по адресу: г. Москва, Куусинена, срок сдачи 2026г.. Это соединение удобной инфраструктуры городской застройки и зеленых зон отдыха.
Здания этажностью 23-28 эт. отличаются современным дизайном и функциональностью. Зеленая благоустроенная территория, приватный двор для жителей дома. В ЖК «ИНДИ Тауэрс» (INDY Towers) предлагаются удобные квартиры площадью от 21.2 м² до 118.6 м² с различной оснащенностью. Есть возможность покупки квартиры в ипотеку.
Стоимость квартиры с отделкой
22 799 844 ₽
17 099 883 ₽
633 329 ₽/м²
Корпус
Корпус B
Этаж
15
Площадь
27 м²
Секция
2
Комнат
Студия

ЖК «ИНДИ Тауэрс» (INDY Towers)
Москва, САО, Куусинена
м. Сокол
м. Октябрьское поле
м. Зорге
2 минуты пешком до м. Зорге
Похожие предложения
Способы приобретения
Банк
Ставка
Первый взнос
Ежемесячный платеж
Настоящий сайт носит исключительно информационный характер, никакая информация, материалы, опубликованные на нем, ни при каких условиях не являются полностью или частично публичной офертой, определяемой положениями статьи 437 Гражданского кодекса РФ
ИПОТЕКА
100 % ОПЛАТА
РЕГИСТРАЦИЯ
РАССРОЧКА 20/80 и 50/50
Срок рассрочки: 6 и 12 месяцев, но не позже срока ввода объекта в эксплуатацию
Бронирование с 01.03.2024 г. по 31.03.2024 г.
АКЦИИ
Скидка 100 000 руб. по региональной жилищной программе (РЖП)
Скидка для IT-специалистов.
Применяется при использовании специальной ипотеки для данной группы клиентов.
студии — 50 000 руб.,
1-комнатные и евродвушки — 75 000 руб.,
2-комнатные и евротрешки— 100 000 руб.,
4-комнатные — 125 000 руб.
Увеличение материнского капитала на 15%
Акция на покупку двух и более квартир под объединение.
Скидка 1%
Акция при единовременной покупке двух и более квартир.
Скидка 1% за каждую квартиру.
По всем акциям срок бронирования с 01.03.2024 г. по 31.03.2024 г.
Все подробности уточняйте у менеджеров продаж по телефону
Остались вопросы?
Оставьте заявку и наш специалист свяжется с вами в ближайшее время для
подробной консультации
Оксана
Коммерческий директор















