Вернуться к странице проекта
Комплекс находится по адресу: г. Москва, Куусинена, срок сдачи 2026г.. Это соединение удобной инфраструктуры городской застройки и зеленых зон отдыха.
Здания этажностью 23-28 эт. отличаются современным дизайном и функциональностью. Зеленая благоустроенная территория, приватный двор для жителей дома. В жилом комплексе «INDY TOWERS» (Инди Тауэрс) предлагаются удобные квартиры площадью от 21.2 м² до 118.6 м² с различной оснащенностью. Есть возможность покупки квартиры в ипотеку.
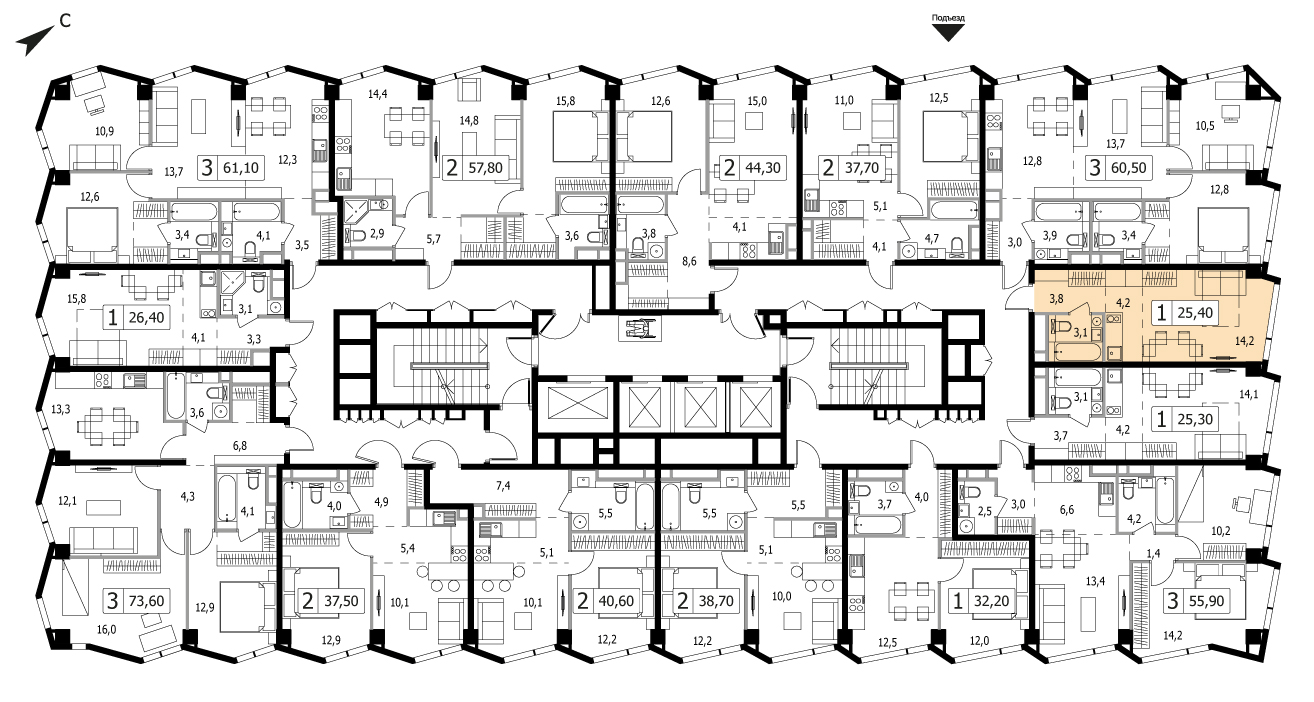
Студия №579, 25.4 м², 16 этаж, Жилой комплекс «INDY TOWERS» (Инди Тауэрс)
Описание:
Комфортная студия квартира площадью 25.4 м² без отделки. Лот расположен на 16 этаже, корпуса А жилого комплекса «INDY TOWERS» (Инди Тауэрс).Комплекс находится по адресу: г. Москва, Куусинена, срок сдачи 2026г.. Это соединение удобной инфраструктуры городской застройки и зеленых зон отдыха.
Здания этажностью 23-28 эт. отличаются современным дизайном и функциональностью. Зеленая благоустроенная территория, приватный двор для жителей дома. В жилом комплексе «INDY TOWERS» (Инди Тауэрс) предлагаются удобные квартиры площадью от 21.2 м² до 118.6 м² с различной оснащенностью. Есть возможность покупки квартиры в ипотеку.
Стоимость квартиры без отделки
18 911 934 ₽
14 183 951 ₽
558 423 ₽/м²
Ежемесячный платеж
от 68 032 ₽/мес
При семейной ипотеке, ставке 6%, первом взносе 20% и сроком на 30 лет
Корпус
Корпус А
Условный номер
№ 579
Этаж
16
Площадь
25.4 м²
Секция
1
Комнат
Студия

Жилой комплекс «INDY TOWERS» (Инди Тауэрс)
Москва, САО, Куусинена
м. Сокол
м. Октябрьское поле
м. Зорге
2 минуты пешком до м. Зорге
Похожие предложения
Способы приобретения
Банк
Ставка
Первый взнос
Ежемесячный платеж
Настоящий сайт носит исключительно информационный характер, никакая информация, материалы, опубликованные на нем, ни при каких условиях не являются полностью или частично публичной офертой, определяемой положениями статьи 437 Гражданского кодекса РФ
ИПОТЕКА
100 % ОПЛАТА
РЕГИСТРАЦИЯ
РАССРОЧКА 20/80 и 50/50
Срок рассрочки: 6 и 12 месяцев, но не позже срока ввода объекта в эксплуатацию
Бронирование с 01.03.2024 г. по 31.03.2024 г.
АКЦИИ
Скидка 100 000 руб. по региональной жилищной программе (РЖП)
Скидка для IT-специалистов.
Применяется при использовании специальной ипотеки для данной группы клиентов.
студии — 50 000 руб.,
1-комнатные и евродвушки — 75 000 руб.,
2-комнатные и евротрешки— 100 000 руб.,
4-комнатные — 125 000 руб.
Увеличение материнского капитала на 15%
Акция на покупку двух и более квартир под объединение.
Скидка 1%
Акция при единовременной покупке двух и более квартир.
Скидка 1% за каждую квартиру.
По всем акциям срок бронирования с 01.03.2024 г. по 31.03.2024 г.
Все подробности уточняйте у менеджеров продаж по телефону
Остались вопросы?
Оставьте заявку и наш специалист свяжется с вами в ближайшее время для
подробной консультации
Оксана
Коммерческий директор















