Стать партнером
Контакты
+7 495 105-99-55 Для жителей Москвы и Московской области
Адрес главного офиса
121096, Москва, ул. Василисы Кожиной, д.1
Ежеденевно, 08:00 – 21:00
vsnr@vsnr.ru Офисы продаж
Вернуться к списку коммерческих помещений

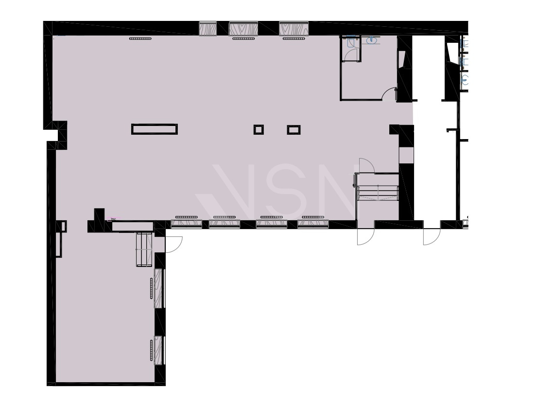
ПСН, 270,30 м², 1-й этаж , Отдельный вход, 30 кВт

Описание:

Лот № 321 673

ПРЯМАЯ АРЕНДА.
м. Маяковская, 5 минут пешком.
Сдаётся помещение 270 м2.

ОСНОВНЫЕ ХАРАКТЕРИСТИКИ:
1-й этаж. Отдельный вход со двора. Парковка.
Высота потолков: 3 метра. 30 квт (можно увеличить).
НДС. Без комиссии.
Назначение: свободное.

ВОЗМОЖНОЕ ИСПОЛЬЗОВАНИЕ:
Офис, клиентский офис, хостел, стоматология, шоурум, ателье.

1 125 000 / в мес

4 162 ₽/м²

Этаж

1

Площадь

270.3 м²

Особенности

С отделкой

Тип реализации

Аренда

Тип помещения

Помещение свободного назначения

Тип здания

Административное здание

Парковка

Наземная

Вентиляция

Приточная

Кондиционирование

Местное

Тип планировки

Открытая

Тип аренды

Прямая

Коммунальные платежи

Не включены

Эксплуатационные расходы

Не включены

Арендные каникулы

Да

Адрес объекта: Старопименовский переулок, д.11, стр.3

Похожие предложения

1 125 000 / в мес

Этаж

1

Площадь

270.3 м²

Отделка: С отделкой

Подробнее
Остались вопросы?
Оставьте заявку и наш специалист свяжется с вами в ближайшее время для подробной консультации
Оксана
Коммерческий директор
Продолжая пользоваться сайтом, вы соглашаетесь на обработку файлов cookie и других пользовательских данных в соответствии с Политикой конфиденциальности и обработки перс. данных.
Понятно