Вернуться к списку коммерческих помещений
М. Новокузнецкая, 10 минут пешком.
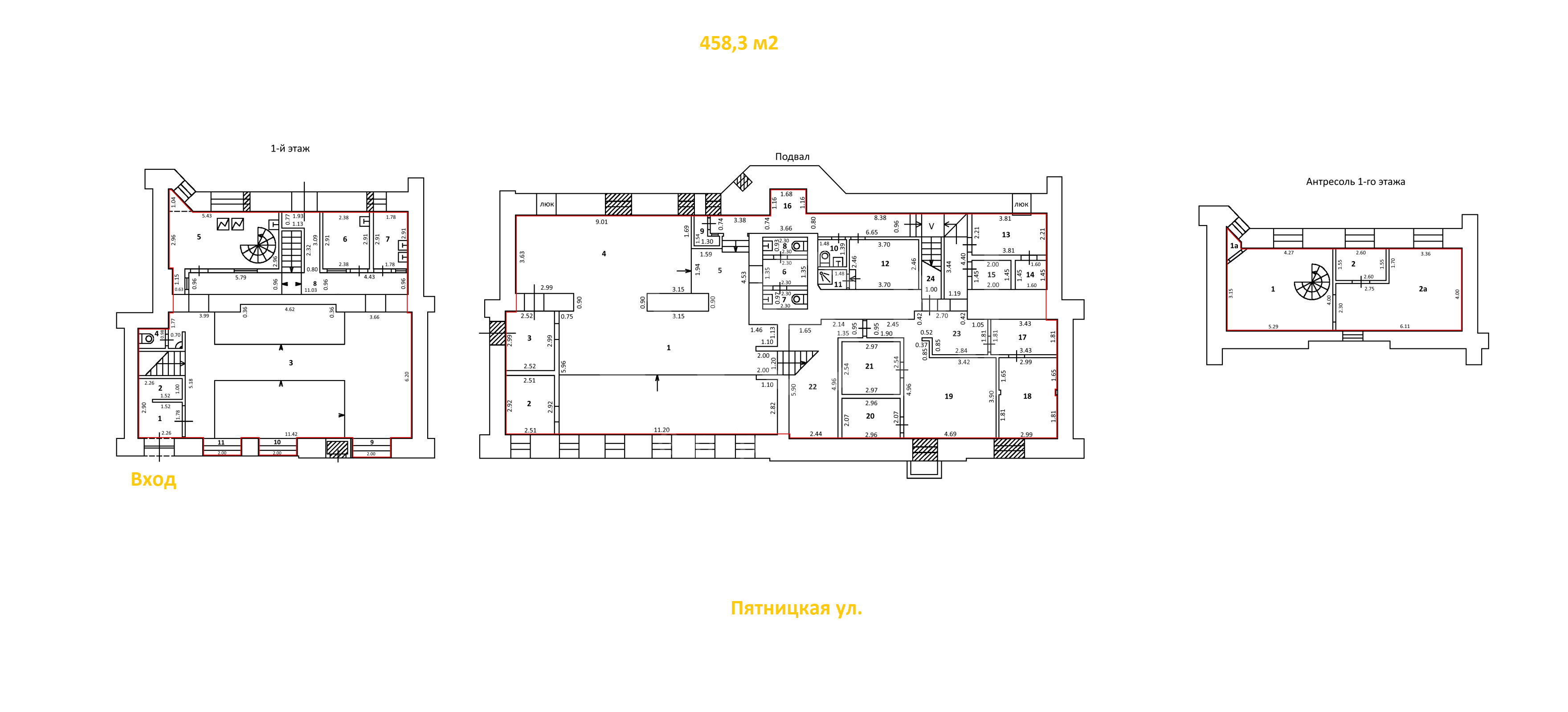
Площадь здания 458,3 м2.
ОСНОВНЫЕ ХАРАКТЕРИСТИКИ:
1-й этаж, антресоль, подвал. 1-я линия домов. Три отдельных входа.
Мощность 100 кВт, высота потолков 3,4 м.
Витрины. Вытяжка. УСН.
Назначение: свободное.
ВОЗМОЖНОЕ ИСПОЛЬЗОВАНИЕ:
свободное назначение, ресторан, кафе, пиццерия.
458 м2, общепит, витрины, 1-я линия
Описание:
Лот № 304 055
ПРЯМАЯ АРЕНДА.М. Новокузнецкая, 10 минут пешком.
Площадь здания 458,3 м2.
ОСНОВНЫЕ ХАРАКТЕРИСТИКИ:
1-й этаж, антресоль, подвал. 1-я линия домов. Три отдельных входа.
Мощность 100 кВт, высота потолков 3,4 м.
Витрины. Вытяжка. УСН.
Назначение: свободное.
ВОЗМОЖНОЕ ИСПОЛЬЗОВАНИЕ:
свободное назначение, ресторан, кафе, пиццерия.
2 199 990 / в мес ₽
4 800 ₽/м²
Этаж
1
Площадь
458.3 м²
Особенности
С отделкой
Тип реализации
Аренда
Тип помещения
Помещение свободного назначения
Тип здания
Жилой дом
Парковка
Городская
Вентиляция
Приточная
Кондиционирование
Местное
Тип планировки
Смешанная
Тип аренды
Прямая
Коммунальные платежи
Не включены
Эксплуатационные расходы
Не включены
Арендные каникулы
Да
Адрес объекта: Пятницкая улица, д.53/18, стр.1
Похожие предложения
Остались вопросы?
Оставьте заявку и наш специалист свяжется с вами в ближайшее время для
подробной консультации

Оксана
Коммерческий директор