Вернуться к списку коммерческих помещений
Метро Арбатская, 5 минут пешком.
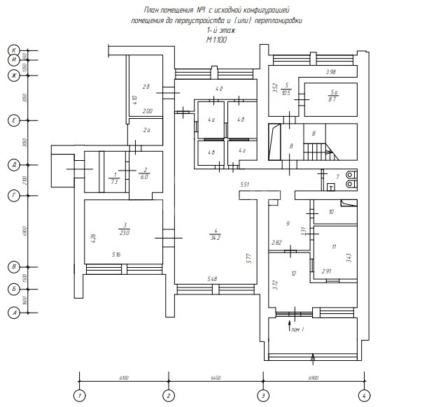
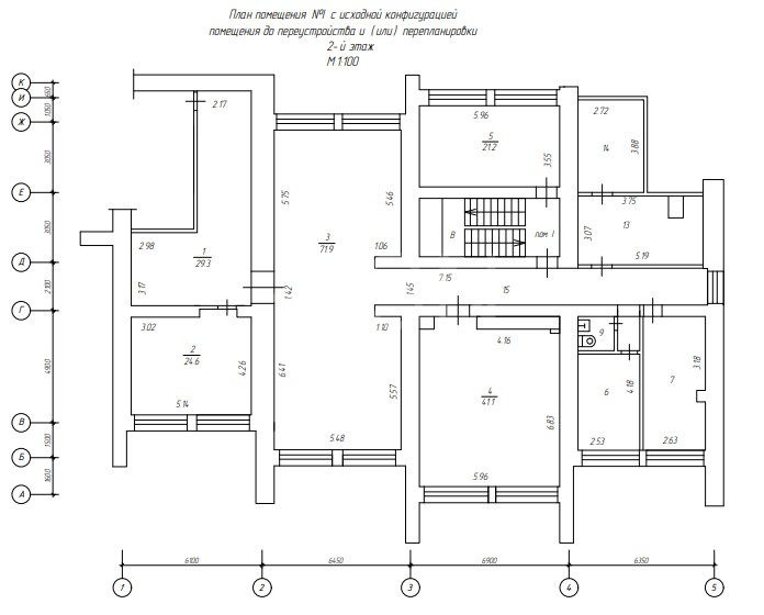
Продается помещение 519 м2.
ОСНОВНЫЕ ХАРАКТЕРИСТИКИ:
1-й этаж, 1-я линия, 2 отдельных входа.
Большие панорамные окна. Электричество: 50 кВт.
Высота потолков: 4 м.
Назначение: свободное.
ВОЗМОЖНОЕ ИСПОЛЬЗОВАНИЕ:
магазин, бутик, шоурум, клиентский офис, ателье, банк, кафе
519 м2 ПРОДАЖА
Описание:
Лот № 304 052
ПРЯМАЯ ПРОДАЖА.Метро Арбатская, 5 минут пешком.
Продается помещение 519 м2.
ОСНОВНЫЕ ХАРАКТЕРИСТИКИ:
1-й этаж, 1-я линия, 2 отдельных входа.
Большие панорамные окна. Электричество: 50 кВт.
Высота потолков: 4 м.
Назначение: свободное.
ВОЗМОЖНОЕ ИСПОЛЬЗОВАНИЕ:
магазин, бутик, шоурум, клиентский офис, ателье, банк, кафе
500 000 000 ₽
963 391 ₽/м²
Этаж
1
Площадь
519 м²
Особенности
Без отделки
Тип реализации
Продажа
Тип помещения
Помещение свободного назначения
Тип здания
Жилой дом
Парковка
Наземная
Вентиляция
Естественная
Кондиционирование
Местное
Тип планировки
Открытая
Коммунальные платежи
Не включены
Эксплуатационные расходы
Не включены
Арендные каникулы
Да
Адрес объекта: Большая Никитская улица, д.37, стр.1
Похожие предложения
Остались вопросы?
Оставьте заявку и наш специалист свяжется с вами в ближайшее время для
подробной консультации

Оксана
Коммерческий директор