Вернуться к списку коммерческих помещений
М. Китай-город, 1 минута пешком.
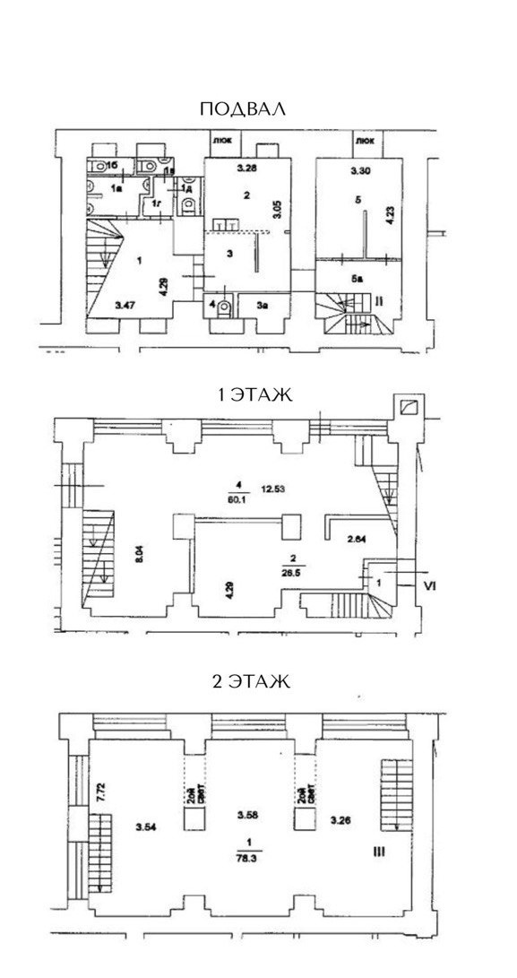
Площадь помещения 240,7 м2.
ОСНОВНЫЕ ХАРАКТЕРИСТИКИ:
1-й, 2-й этаж, подвал, 1-я линия домов.
Три отдельных входа. Витрины. Трафик.
Мощность 120 кВт, высота потолков 3,2 м.
Вытяжка. Веранда. УСН.
Назначение: свободное.
240м2, Китай-город
Описание:
Лот № 303 602
ПРЯМАЯ ПРОДАЖА.М. Китай-город, 1 минута пешком.
Площадь помещения 240,7 м2.
ОСНОВНЫЕ ХАРАКТЕРИСТИКИ:
1-й, 2-й этаж, подвал, 1-я линия домов.
Три отдельных входа. Витрины. Трафик.
Мощность 120 кВт, высота потолков 3,2 м.
Вытяжка. Веранда. УСН.
Назначение: свободное.
218 000 000 ₽
905 692 ₽/м²
Этаж
1
Площадь
240.7 м²
Особенности
Без отделки
Тип реализации
Продажа
Тип помещения
Помещение свободного назначения
Тип здания
Административное здание
Парковка
Городская
Вентиляция
Приточная
Кондиционирование
Местное
Тип планировки
Открытая
Коммунальные платежи
Не включены
Эксплуатационные расходы
Не включены
Арендные каникулы
Да
Адрес объекта: Большой Черкасский переулок, д.13, стр.4
Похожие предложения
Остались вопросы?
Оставьте заявку и наш специалист свяжется с вами в ближайшее время для
подробной консультации

Оксана
Коммерческий директор