Вернуться к списку коммерческих помещений
м. Стахановская, 5 минут пешком.
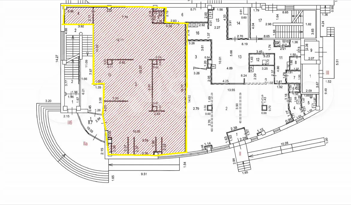
Сдаётся помещение 235м2.
ОСНОВНЫЕ ХАРАКТЕРИСТИКИ:
1-й этаж. 1-я линия домов.
Отдельный вход. Трафик. С отделкой.
Высота потолков: 4 метра. 70кВт.
Есть возможность установить вытяжку.
Назначение: свободное. УСН.
ВОЗМОЖНОЕ ИСПОЛЬЗОВАНИЕ:
свободное назначение, магазин, ресторан, салон красоты, кафе, общепит и т.д.
235м2, трафик,1-я линия. 70квт.
Описание:
Лот № 297 232
ПРЯМАЯ АРЕНДА.м. Стахановская, 5 минут пешком.
Сдаётся помещение 235м2.
ОСНОВНЫЕ ХАРАКТЕРИСТИКИ:
1-й этаж. 1-я линия домов.
Отдельный вход. Трафик. С отделкой.
Высота потолков: 4 метра. 70кВт.
Есть возможность установить вытяжку.
Назначение: свободное. УСН.
ВОЗМОЖНОЕ ИСПОЛЬЗОВАНИЕ:
свободное назначение, магазин, ресторан, салон красоты, кафе, общепит и т.д.
658 000 / в мес ₽
2 800 ₽/м²
Этаж
1
Площадь
235 м²
Особенности
С отделкой
Тип реализации
Аренда
Тип помещения
Помещение свободного назначения
Тип здания
Административное здание
Парковка
Наземная
Вентиляция
Приточная
Кондиционирование
Центральное
Тип планировки
Открытая
Тип аренды
Прямая
Коммунальные платежи
Не включены
Эксплуатационные расходы
Не включены
Арендные каникулы
Да
Адрес объекта: Рязанский проспект проспект, д.12
Похожие предложения
Остались вопросы?
Оставьте заявку и наш специалист свяжется с вами в ближайшее время для
подробной консультации

Оксана
Коммерческий директор