Вернуться к списку коммерческих помещений
м. Ленинский проспект 9 минут пешком.
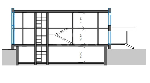
Сдается отдельно стоящее здание площадью 1571,8кв.м.:
1 этаж - 309,76 кв.м.;
2 этаж - 435, 74 кв.м.;
цоколь - 309,76 кв.м.;
кровля - 390,01 кв.м.
ОСНОВНЫЕ ХАРАКТЕРИСТИКИ:
Свободная планировка.
Высокие потолки от 4 метров.
Мощность - 243 кВт, зона разгрузки, структурное остекление с трех сторон фасада.
Первая линия, трафик.
Возможность размещения террасы на кровле здания.
Без комиссии, УСН.
ВОЗМОЖНОЕ ИСПОЛЬЗОВАНИЕ:
шоурум, клиентский офис, свободное назначение.
Здание, 1571,8м2,
Описание:
Лот № 292 473
ПРЯМАЯ АРЕНДА.м. Ленинский проспект 9 минут пешком.
Сдается отдельно стоящее здание площадью 1571,8кв.м.:
1 этаж - 309,76 кв.м.;
2 этаж - 435, 74 кв.м.;
цоколь - 309,76 кв.м.;
кровля - 390,01 кв.м.
ОСНОВНЫЕ ХАРАКТЕРИСТИКИ:
Свободная планировка.
Высокие потолки от 4 метров.
Мощность - 243 кВт, зона разгрузки, структурное остекление с трех сторон фасада.
Первая линия, трафик.
Возможность размещения террасы на кровле здания.
Без комиссии, УСН.
ВОЗМОЖНОЕ ИСПОЛЬЗОВАНИЕ:
шоурум, клиентский офис, свободное назначение.
7 599 000 / в мес ₽
4 835 ₽/м²
Этаж
1
Площадь
1571.8 м²
Особенности
Без отделки
Тип реализации
Аренда
Тип помещения
Здание
Тип здания
Административное здание
Парковка
Городская
Вентиляция
Приточная
Кондиционирование
Местное
Тип планировки
Открытая
Тип аренды
Прямая
Коммунальные платежи
Не включены
Эксплуатационные расходы
Не включены
Арендные каникулы
Да
Адрес объекта: 60-летия Октября улица, д.6
Похожие предложения
Остались вопросы?
Оставьте заявку и наш специалист свяжется с вами в ближайшее время для
подробной консультации

Оксана
Коммерческий директор