Вернуться к списку коммерческих помещений
м. Юго-западная, 10 минут пешком.
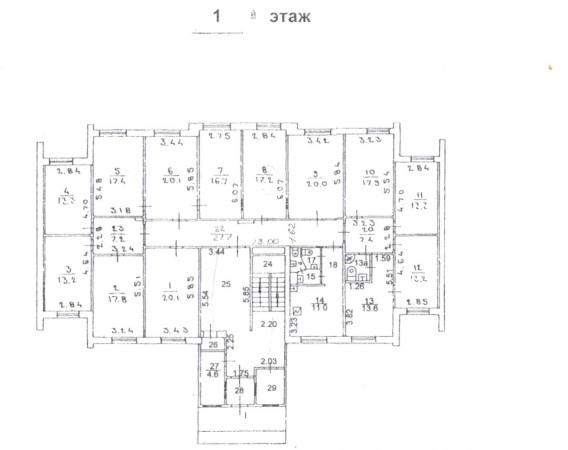
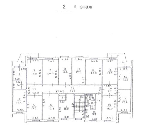
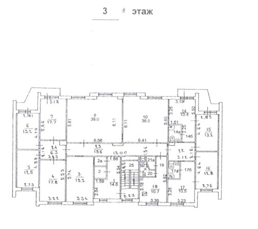
Сдается отдельно стоящее здание в 3 этажа 951,5 м².
ОСНОВНЫЕ ХАРАКТЕРИСТИКИ:
3 Этажа. Отдельно стоящее здание в 3 этажа 951,5 м².
Отдельный вход. 20 Парковочных мест.
Мощность 40кВт, можно увеличить.
Видео-наблюдение по периметру. Современная пожарная безопасность.
Потолки 3 метра.
Вентиляция приточно-принудительная +кондиционирование.
С ОТДЕЛКОЙ.
Предоставляется юр адрес.
УСН. Без комиссии.
Возможное использование:
Свободное назначение, банк, офис, мед центр, офтальмология, стоматология, вет клиника, детский центр.
951,5 м2. Здание. 3 этажа. Парковка 20 м/м.
Описание:
Лот № 283 814
ПРЯМАЯ АРЕНДА.м. Юго-западная, 10 минут пешком.
Сдается отдельно стоящее здание в 3 этажа 951,5 м².
ОСНОВНЫЕ ХАРАКТЕРИСТИКИ:
3 Этажа. Отдельно стоящее здание в 3 этажа 951,5 м².
Отдельный вход. 20 Парковочных мест.
Мощность 40кВт, можно увеличить.
Видео-наблюдение по периметру. Современная пожарная безопасность.
Потолки 3 метра.
Вентиляция приточно-принудительная +кондиционирование.
С ОТДЕЛКОЙ.
Предоставляется юр адрес.
УСН. Без комиссии.
Возможное использование:
Свободное назначение, банк, офис, мед центр, офтальмология, стоматология, вет клиника, детский центр.
2 490 000 / в мес ₽
2 618 ₽/м²
Этаж
1
Площадь
951 м²
Особенности
С отделкой
Тип реализации
Аренда
Тип помещения
Здание
Тип здания
Отдельно стоящее здание
Парковка
Наземная
Вентиляция
Естественная
Кондиционирование
Местное
Тип планировки
Смешанная
Тип аренды
Прямая
Коммунальные платежи
Не включены
Эксплуатационные расходы
Не включены
Арендные каникулы
Да
Адрес объекта: проспект Вернадского , д.125, лит.А
Похожие предложения
Остались вопросы?
Оставьте заявку и наш специалист свяжется с вами в ближайшее время для
подробной консультации

Оксана
Коммерческий директор