Вернуться к списку коммерческих помещений
м. Красные ворота, м. Сухаревская. 5 минуты пешком.
Сдается помещение 3175,1 м2.
ОСНОВНЫЕ ХАРАКТЕРИСТИКИ:
1-й этаж. Отдельный вход. Зона разгрузки.
Трафик. Хорошее состояние.
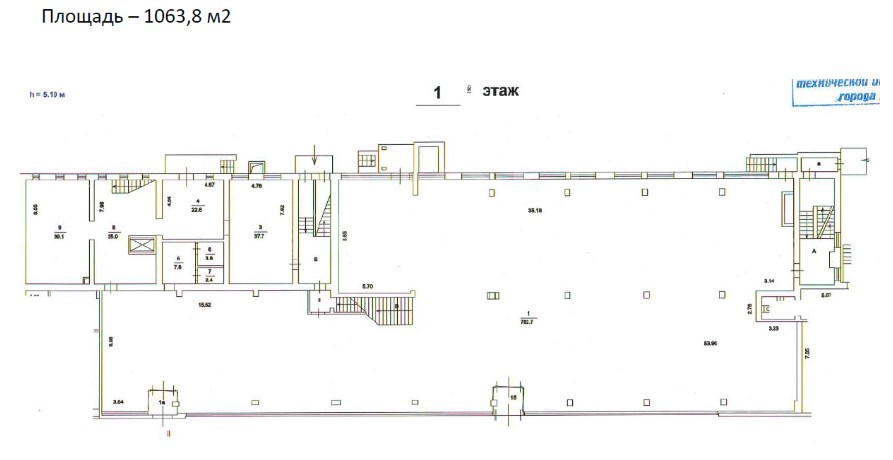
1 этаж- 1063,8 м2, 2- этаж 1232,7 м2,
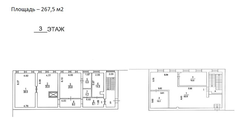
3 этаж -267.5 м2, подвал -611,1 м2
Высота потолков: 5 метра. Потолок в подвале 2.8 м 540 кВт.
Назначение: свободное.
ВОЗМОЖНОЕ ИСПОЛЬЗОВАНИЕ:
Фитнес, магазин, клиентский офис, клиника, мед. центр, салон красоты, и т.д.
Без комиссии.
ПСН 3175.1 м2
Описание:
Лот № 250 327
ПРЯМАЯ АРЕНДА.м. Красные ворота, м. Сухаревская. 5 минуты пешком.
Сдается помещение 3175,1 м2.
ОСНОВНЫЕ ХАРАКТЕРИСТИКИ:
1-й этаж. Отдельный вход. Зона разгрузки.
Трафик. Хорошее состояние.
1 этаж- 1063,8 м2, 2- этаж 1232,7 м2,
3 этаж -267.5 м2, подвал -611,1 м2
Высота потолков: 5 метра. Потолок в подвале 2.8 м 540 кВт.
Назначение: свободное.
ВОЗМОЖНОЕ ИСПОЛЬЗОВАНИЕ:
Фитнес, магазин, клиентский офис, клиника, мед. центр, салон красоты, и т.д.
Без комиссии.
6 980 000 / в мес ₽
2 198 ₽/м²
Этаж
1
Площадь
3175.1 м²
Особенности
Без отделки
Тип реализации
Аренда
Тип помещения
Помещение свободного назначения
Тип здания
Административное здание
Парковка
Наземная
Вентиляция
Естественная
Кондиционирование
Местное
Тип планировки
Открытая
Тип аренды
Прямая
Коммунальные платежи
Не включены
Эксплуатационные расходы
Не включены
Арендные каникулы
Да
Адрес объекта: Садовая-спасская улица, д.3, стр.3
Похожие предложения
Остались вопросы?
Оставьте заявку и наш специалист свяжется с вами в ближайшее время для
подробной консультации

Оксана
Коммерческий директор