Вернуться к странице проекта
БЦ STONE Ленинский класса А.
Архитектурное бюро «WALL» подготовило ультрасовременный проект премиального бизнес центра с максимально эффективными планировочными решениями.
Дизайн лобби и общественных пространств разработан лондонской дизайн студией Kemelin Partners.
ТРАНСПОРТНАЯ ДОСТУПНОСТЬ:
- 4 минут пешком от м. Ленинский проспект.
- 4 минуты пешком от МЦК Площадь Гагарина.
На автомобиле:
- 6 минут до Садового кольца.
- 2 минуты до ТТК.
КЛЮЧЕВЫЕ ХАРАКТЕРИСТИКИ:
- Высота потолков: офисные этажи 3.65.
- Шаг колонн: 8.4 м.
- Остекление в пол с возможностью проветривания.
- Приточно-вытяжная вентиляция, центральное кондиционирование.
- Парковка: 200 м/мест.
- Отделка: shell&core.
РАССРОЧКА:
10% первоначальный платеж, гибкий график платежей.
Строительная готовность в 2025 году.
Звоните! Подберем лучшие лоты и расскажем об арендном потенциале!
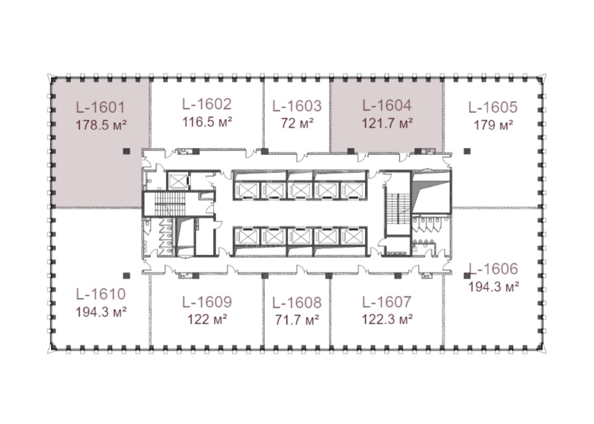
БЦ класса А офис 178.5 м2
Описание:
Лот № 002
ПРОДАЖА офиса 178.5 м2, 16-й этаж (№L – 1602).БЦ STONE Ленинский класса А.
Архитектурное бюро «WALL» подготовило ультрасовременный проект премиального бизнес центра с максимально эффективными планировочными решениями.
Дизайн лобби и общественных пространств разработан лондонской дизайн студией Kemelin Partners.
ТРАНСПОРТНАЯ ДОСТУПНОСТЬ:
- 4 минут пешком от м. Ленинский проспект.
- 4 минуты пешком от МЦК Площадь Гагарина.
На автомобиле:
- 6 минут до Садового кольца.
- 2 минуты до ТТК.
КЛЮЧЕВЫЕ ХАРАКТЕРИСТИКИ:
- Высота потолков: офисные этажи 3.65.
- Шаг колонн: 8.4 м.
- Остекление в пол с возможностью проветривания.
- Приточно-вытяжная вентиляция, центральное кондиционирование.
- Парковка: 200 м/мест.
- Отделка: shell&core.
РАССРОЧКА:
10% первоначальный платеж, гибкий график платежей.
Строительная готовность в 2025 году.
Звоните! Подберем лучшие лоты и расскажем об арендном потенциале!
88 179 000 ₽
494 000 ₽/м²
Этаж
16
Площадь
178.5 м²
Особенности
Без отделки
Тип реализации
Продажа
Тип помещения
Офис
Тип здания
Бизнес центр
Парковка
Подземная
Вентиляция
Приточная
Кондиционирование
Центральное
Арендные каникулы
Нет
Бизнес-центр «STONE Ленинский»
Москва, ЮЗАО, Москва, ул. Вавилова
4 минуты пешком до м. Ленинский проспект
Похожие предложения
Остались вопросы?
Оставьте заявку и наш специалист свяжется с вами в ближайшее время для
подробной консультации
Оксана
Коммерческий директор