Вернуться к странице проекта
В БЦ STONE Ленинский класса А.
Башня Tower L.
Архитектурное бюро «WALL» подготовило ультрасовременный проект премиального бизнес-центра с максимально эффективными планировочными решениями.
Дизайн лобби и общественных пространств разработан лондонской дизайн студией Kemelin Partners.
ТРАНСПОРТНАЯ ДОСТУПНОСТЬ:
- 4 минут пешком от м. Ленинский проспект.
- 4 минуты пешком от МЦК Площадь Гагарина.
КЛЮЧЕВЫЕ ХАРАКТЕРИСТИКИ:
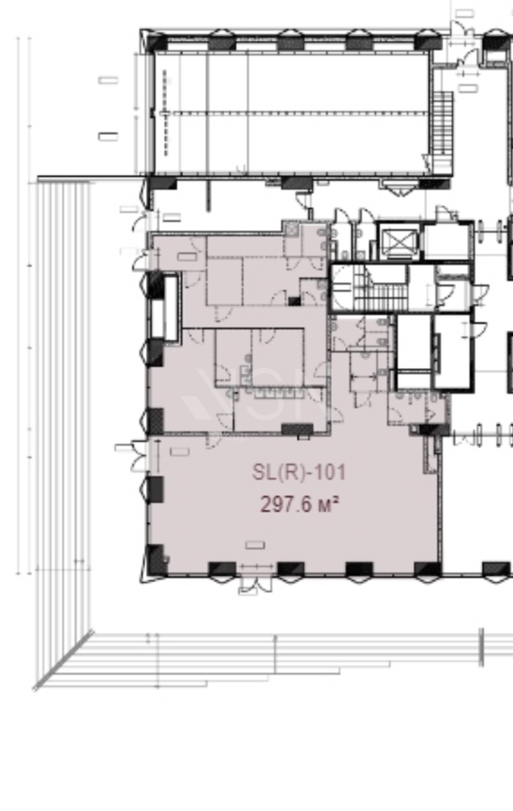
- Высота потолка: 6.65 м2, 1-я линия домов.
- Витринное остекление, место под размещение вывески.
- Возможность организовать летнюю веранду.
- Два отдельных входа с улицы.
- мощность:125 квт.
- Приточно-вытяжная вентиляция.
- Возможное использование: ресторан, магазин, шоурум, офис продаж, салон красоты.
РАССРОЧКА:
Первоначальный платёж 10% от стоимости офиса, гибкий график платежей.
Звоните! Подберём лучшие лоты и расскажем об арендном потенциале!
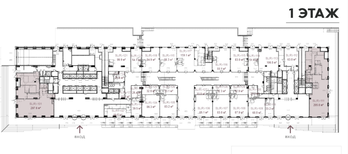
БЦ класса А 1-й этаж,1-я линия, витрины.
Описание:
Лот № 005
ПРОДАЖА помещения под ресторан 297.6 м2, 1-й этаж.В БЦ STONE Ленинский класса А.
Башня Tower L.
Архитектурное бюро «WALL» подготовило ультрасовременный проект премиального бизнес-центра с максимально эффективными планировочными решениями.
Дизайн лобби и общественных пространств разработан лондонской дизайн студией Kemelin Partners.
ТРАНСПОРТНАЯ ДОСТУПНОСТЬ:
- 4 минут пешком от м. Ленинский проспект.
- 4 минуты пешком от МЦК Площадь Гагарина.
КЛЮЧЕВЫЕ ХАРАКТЕРИСТИКИ:
- Высота потолка: 6.65 м2, 1-я линия домов.
- Витринное остекление, место под размещение вывески.
- Возможность организовать летнюю веранду.
- Два отдельных входа с улицы.
- мощность:125 квт.
- Приточно-вытяжная вентиляция.
- Возможное использование: ресторан, магазин, шоурум, офис продаж, салон красоты.
РАССРОЧКА:
Первоначальный платёж 10% от стоимости офиса, гибкий график платежей.
Звоните! Подберём лучшие лоты и расскажем об арендном потенциале!
333 312 000 ₽
1 120 000 ₽/м²
Этаж
1
Площадь
297.6 м²
Особенности
Без отделки
Тип реализации
Продажа
Тип помещения
Помещение свободного назначения
Тип здания
Бизнес центр
Парковка
Подземная
Вентиляция
Приточная
Кондиционирование
Центральное
Арендные каникулы
Нет
Бизнес-центр «STONE Ленинский»
Москва, ЮЗАО, Москва, ул. Вавилова
4 минуты пешком до м. Ленинский проспект
Похожие предложения
Остались вопросы?
Оставьте заявку и наш специалист свяжется с вами в ближайшее время для
подробной консультации
Оксана
Коммерческий директор