Вернуться к странице проекта
БЦ STONE Калужская класса А.
Башня K2 -13 этажей.
Архитектурную концепцию разрабатывает бюро Kleinewelt Аrchitekten.
Проект имеет живой силуэт: три офисные башни с динамичным фасадом станут новой архитектурной доминантой района.
ТРАНСПОРТНАЯ ДОСТУПНОСТЬ:
- 1 минута пешком от м. Воронцовская (БКЛ).
- 1 минута пешком от м. Калужская (радиальная).
На автомобиле:
- 6 км до ТТК.
- 5.5 км до МКАД.
КЛЮЧЕВЫЕ ХАРАКТЕРИСТИКИ:
- Высота потолков: офисные этажи 3.65.
- Шаг колонн: 8.6 м.
- Остекление в пол с возможностью естественного проветривания.
- Приточно-вытяжная вентиляция, центральное кондиционирование.
- Парковка: 300 м/мест.
- Отделка: shell&core.
РАССРОЧКА:
Первоначальный платёж 10% от стоимости офиса, гибкий график платежей.
Рост цены метра к завершению строительства объекта составит до 50%.
Звоните! Подберём лучшие лоты и расскажем об арендном потенциале!
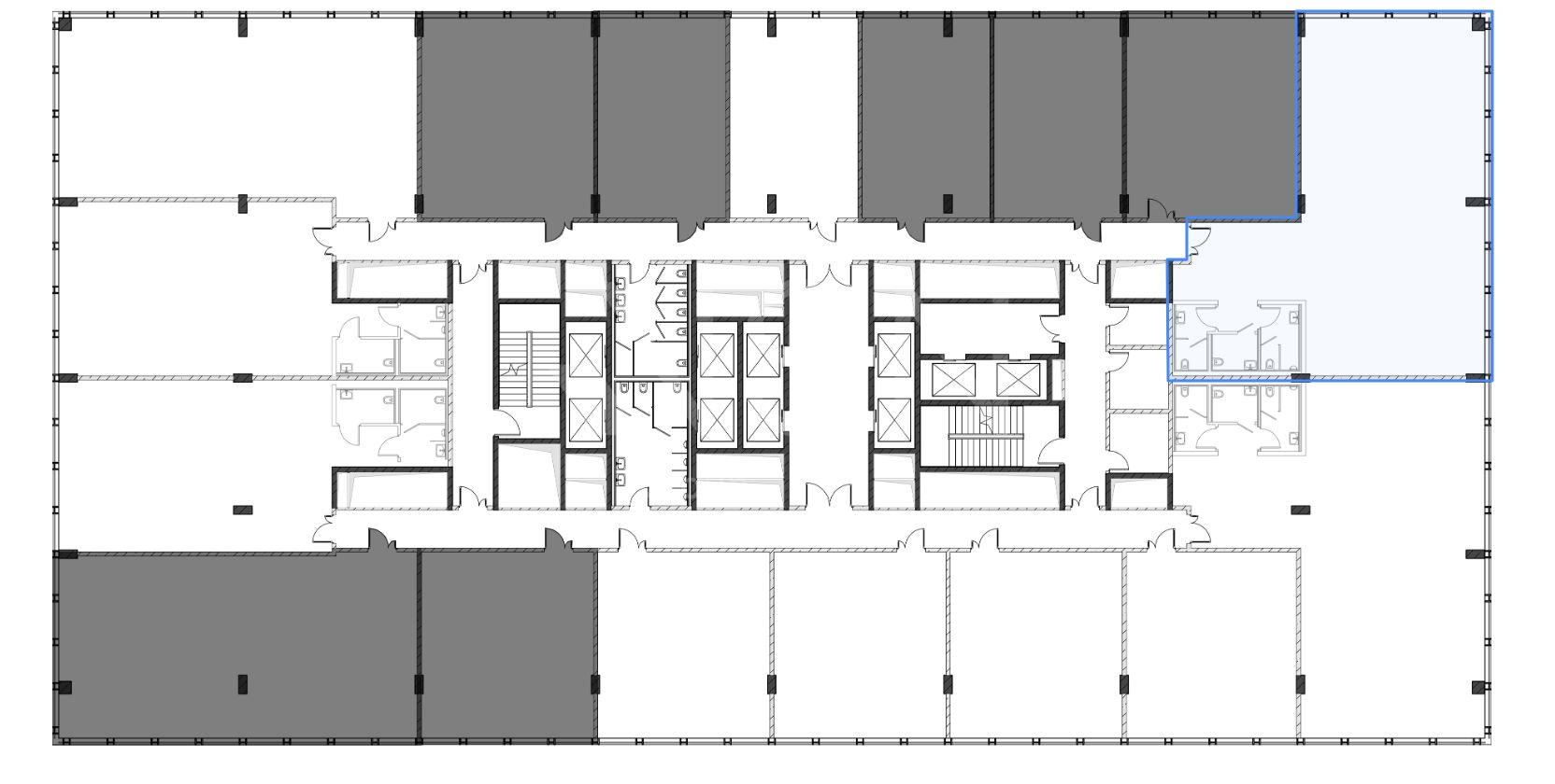
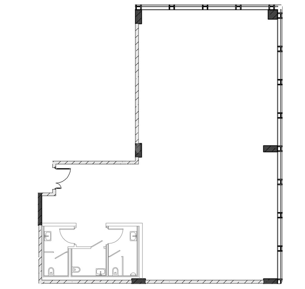
БЦ класса А продажа офиса 201 м2
Описание:
Лот № 006
ПРОДАЖА офиса 201 м2, 6-й этаж (№ К2-609).БЦ STONE Калужская класса А.
Башня K2 -13 этажей.
Архитектурную концепцию разрабатывает бюро Kleinewelt Аrchitekten.
Проект имеет живой силуэт: три офисные башни с динамичным фасадом станут новой архитектурной доминантой района.
ТРАНСПОРТНАЯ ДОСТУПНОСТЬ:
- 1 минута пешком от м. Воронцовская (БКЛ).
- 1 минута пешком от м. Калужская (радиальная).
На автомобиле:
- 6 км до ТТК.
- 5.5 км до МКАД.
КЛЮЧЕВЫЕ ХАРАКТЕРИСТИКИ:
- Высота потолков: офисные этажи 3.65.
- Шаг колонн: 8.6 м.
- Остекление в пол с возможностью естественного проветривания.
- Приточно-вытяжная вентиляция, центральное кондиционирование.
- Парковка: 300 м/мест.
- Отделка: shell&core.
РАССРОЧКА:
Первоначальный платёж 10% от стоимости офиса, гибкий график платежей.
Рост цены метра к завершению строительства объекта составит до 50%.
Звоните! Подберём лучшие лоты и расскажем об арендном потенциале!
86 271 900 ₽
393 000 ₽/м²
Этаж
6
Площадь
201 м²
Особенности
Без отделки
Тип реализации
Продажа
Тип помещения
Офис
Тип здания
Бизнес центр
Парковка
Подземная
Вентиляция
Приточная
Кондиционирование
Центральное
Тип планировки
Открытая
Арендные каникулы
Нет
Старокалужское ш., 64С1
Москва, ЮЗАО
8 минут пешком до м. Калужская
Похожие предложения
Остались вопросы?
Оставьте заявку и наш специалист свяжется с вами в ближайшее время для
подробной консультации
Оксана
Коммерческий директор