Вернуться к странице проекта
	                                 
                
                                
                
			                                
                            
                        
			                        
	                                
БЦ STONE Калужская класса А.
Башня K2 -13 этажей.
Архитектурную концепцию разрабатывает бюро Kleinewelt Аrchitekten.
Проект имеет живой силуэт: три офисные башни с динамичным фасадом станут новой архитектурной доминантой района.
ТРАНСПОРТНАЯ ДОСТУПНОСТЬ:
- 1 минута пешком от м. Воронцовская (БКЛ).
- 1 минута пешком от м. Калужская (радиальная).
На автомобиле:
- 6 км до ТТК.
- 5.5 км до МКАД.
КЛЮЧЕВЫЕ ХАРАКТЕРИСТИКИ:
- Высота потолков: офисные этажи 3.65
- Шаг колонн: 8.6 м.
- Остекление в пол с возможностью естественного проветривания.
- Приточно-вытяжная вентиляция, центральное кондиционирование.
- Парковка: 300 м/мест.
- Отделка: shell&core.
РАССРОЧКА:
Первоначальный платёж 10% от стоимости офиса, гибкий график платежей.
Рост цены метра к завершению строительства объекта составит до 50%.
Звоните! Подберём лучшие лоты и расскажем об арендном потенциале!
            БЦ класса А продажа офиса 154.8 м2
Описание:
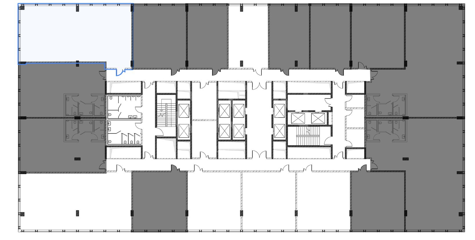
Лот № 005
ПРОДАЖА офиса 154.8 м2, 5-й этаж (№ К2-502).БЦ STONE Калужская класса А.
Башня K2 -13 этажей.
Архитектурную концепцию разрабатывает бюро Kleinewelt Аrchitekten.
Проект имеет живой силуэт: три офисные башни с динамичным фасадом станут новой архитектурной доминантой района.
ТРАНСПОРТНАЯ ДОСТУПНОСТЬ:
- 1 минута пешком от м. Воронцовская (БКЛ).
- 1 минута пешком от м. Калужская (радиальная).
На автомобиле:
- 6 км до ТТК.
- 5.5 км до МКАД.
КЛЮЧЕВЫЕ ХАРАКТЕРИСТИКИ:
- Высота потолков: офисные этажи 3.65
- Шаг колонн: 8.6 м.
- Остекление в пол с возможностью естественного проветривания.
- Приточно-вытяжная вентиляция, центральное кондиционирование.
- Парковка: 300 м/мест.
- Отделка: shell&core.
РАССРОЧКА:
Первоначальный платёж 10% от стоимости офиса, гибкий график платежей.
Рост цены метра к завершению строительства объекта составит до 50%.
Звоните! Подберём лучшие лоты и расскажем об арендном потенциале!
63 622 800 ₽
395 000 ₽/м²
Этаж
5
Площадь
154.8 м²
Особенности
Без отделки
Тип реализации
Продажа
Тип помещения
Офис
Тип здания
Бизнес центр
Парковка
Подземная
Вентиляция
Приточная
Кондиционирование
Центральное
Тип планировки
Открытая
Коммунальные платежи
Не включены
Эксплуатационные расходы
Не включены
Арендные каникулы
Нет
 
        
                Старокалужское ш., 64С1
                
        
                    Москва, ЮЗАО
                   
                                        8 минут пешком до м. Калужская
                
            Похожие предложения
Остались вопросы?
        
                    Оставьте заявку и наш специалист свяжется с вами в ближайшее время для
                    подробной консультации
             
                        Оксана
                            Коммерческий директор
                         
                
             
                                                                     
                                                                     
                                                                     
                                                                     
                                                                     
                                                                     
                                                                     
                                                                     
                                                                     
                                                                     
                                                                    